
















































































































| data d'inizio | data di fine | capacità | mese | informazione |
|---|---|---|---|---|
| Non libero al momento | ||||
Numero di registrazione : 13001000061QF
Vacanza in stile in questa villa duplex con 4 camere da letto in Provenza, nel Sud della Francia! Dotata di un cortile privato, un terrazzo, un balcone e un giardino, questo appartamento con 4 camere da letto offre ai turisti una piccola parte di una stupenda proprietà privata in uno degli scenari più sbalorditivi del mondo. Nel cortile è presente anche una grande piscina.
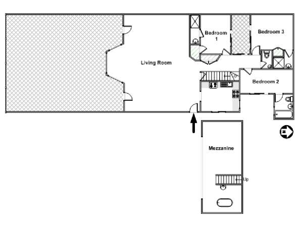
Situata sul Chemin des Moulins 3 & Avenue Jules Isaac, questo appartamento a villa con 4 camere da letto si estende su 2 piani (terra e primo piano) e comprende 4 bagni e mezzo! È disponibile un parcheggio privato. Nota: la camera da letto 4 è un soppalco e ha pareti che non raggiungono il soffitto, il che può limitare la privacy.
Questo appartamento villa in affitto spaziosa e lussuosa vanta soffitti alti, pavimenti piastrellati e grandi porte scorrevoli in vetro che permettono alla luce naturale di illuminare ogni stanza. Nella villa sono presenti servizi per il confort come una lavatrice/asciugatrice, una televisione a schermo piatto, un camino moderno, e un tavolo da pranzo in legno antico. Tutte le camere sono standard e hanno pavimenti in moquette. Le camere da letto 1 e 2 hanno letti a una piazza e mezza. Le camere 3 e 4 hanno due letti singoli.
La grande cucina piastrellata dell’appartamento presenta lunghi controsoffitti in legno, mobili ed elettrodomestici in acciaio inox. È possibile consumare pasti veloci sulla piccola tavola rotonda. Per una vostra ulteriore comodità è presente anche una lavastoviglie.
Forse la caratteristica più impressionante di questo appartamento con quattro camere da letto non è rappresentata dal suo interno, ma piuttosto dal paesaggio naturale che lo circonda. Un cortile privato e una terrazza regalano ai turisti stupendi momenti di relax dati dal verde della splendida Francia del sud, entro i confini di una proprietà privata. Questo cortile arredato comprende tavoli e sedie, biciclette, un barbecue, e sedie a sdraio.
Nota bene: i servizi disponibili su richiesta includono: il servizio acquisti, servizio di pulizia e cura dei bambini / servizio di babysitter.
Con il paesaggio della Provenza resa famosa da pittori francesi come Cezanne, questa zona del Sud della Francia è diventata molto popolare grazie alle ricche celebrità mondane . La villa con 4 camere da letto in Aix-en-Provence permette di godersi tutta questa bellezza naturale, nonché numerose attrazioni imperdibili. Qui di seguito sono riportati solo alcuni suggerimenti su cosa visitare nella zona.