





















| Anfangsdatum | Enddatum | Personen | Monat | Informationen |
|---|---|---|---|---|
| 26. Apr. 2026 | 01. Jun. 2026 | 6 |
$18.769 |
Informationen:Taxes not included. Price subject to change |
| 01. Jun. 2026 | 10. Aug. 2026 | 6 |
$21.445 |
Informationen:Taxes not included. Price subject to change |
| 19. Sep. 2026 | 6 |
$18.905 |
Informationen:Taxes not included. Price subject to change |
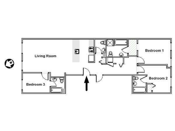
Werfen Sie einen Blick auf diese 3-Zimmer-Wohnung mit drei Badezimmern und einem Gäste-WC, die sich in einem Reihenhaus ohne Aufzug im Viertel Gramercy von Manhattan, New York, befindet.
Diese helle, möblierte Mietwohnung liegt in der Nähe der Kreuzung East 15th Street und 2nd Avenue und hat eine Wohnfläche von ca. 105 m². Die Wohnung verfügt über eine Waschmaschine, einen Trockner und ein Sicherheitssystem.
Zur Einrichtung des klimatisierten Wohnzimmers gehört ein Sofa, ein Fernseher und ein Essbereich. Die offene Küche bietet viel Arbeitsfläche (dank der Kücheninsel!), einen Herd mit Backofen, einen Toaster, eine Mikrowelle, einen Geschirrspüler sowie einen Kühl- und Gefrierschrank. Alle drei Schlafzimmer verfügen über eine Klimaanlage. Das erste Schlafzimmer ist mit einem Kingsize-Bett, einem Fernseher und einem Schreibtisch/Arbeitsbereich ausgestattet. Die beiden anderen Schlafzimmer bieten jeweils ein Queensize-Bett, wobei eines davon ebenfalls einen Schreibtisch/Arbeitsbereich besitzt. Alle drei modernen Badezimmer sind mit Duschbadewannen ausgestattet. Die Badezimmerspiegel verfügen über weiße LED-Beleuchtung, die ideal ist, um sich für den bevorstehenden Abend zurecht zu machen.
Im Umkreis von vier Blocks von der Wohnung gibt es Restaurants, Cafés und Bars, die eine große Auswahl an Speisen anbieten. Der Stuyvesant Square Park ist einen Block entfernt und bietet historische Elemente, Wege und einen Springbrunnen. Auch der Union Square Park ist ein großartiger Ort zum Verweilen oder für den Besuch von Veranstaltungen. Diese Grünfläche, in der auch ein Bauernmarkt zu finden ist, liegt drei Blocks von der 3-Zimmer-Wohnung entfernt.
Der U-Bahn-Eingang zur Station 1st Avenue und 14th Street ist ca. 500 Meter entfernt und die Station 3rd Avenue und 14th Street ist nur einen Block von der Wohnung entfernt. Beide bieten Zugang zur Linie L an. Für die U-Bahn-Linie 6 ist die Station Astor Place und 4th Avenue ca. 800 Meter entfernt.