



























| Anfangsdatum | Enddatum | Personen | Monat | Informationen |
|---|---|---|---|---|
| 01. Okt. 2026 | 4 |
$6.200 |
Informationen:UNFURNISHED - 9 months min - Electric, Cable & WiFi not incl. Heat incl. - $300 Cleaning fee |
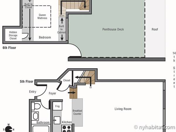
Diese vollmöblierte 2-Zimmer-Wohnung befindet sich auf der 14th Street & 7th Avenue im Stadtviertel West Village in Manhattan. Die Mietwohnung ist nach Norden auf die 14th Street ausgerichtet und befindet sich im fünften Stock (entspricht in Europa dem vierten Stock) eines Reihenhauses ohne Lift. Das Gebäude ist mit einem Sicherheitssystem mit Buzzer und einem eigenen Waschraum ausgestattet.
Die 2-Zimmer-Wohnung ist in einem eklektischen Einrichtungsstil gehalten. So kombiniert das Wohnzimmer Parkettboden mit freigelegten Backsteinmauern und verfügt über ein ausziehbares Sofa und einen Fernseher mit Kabelanschluss; also der perfekte Ort, um sich zu entspannen. Die offene Küche, die vom Wohnzimmer durch eine holzvertäfelte Bar mit vier Barhockern getrennt ist, besteht aus einem Herd, einem Kühlschrank, einer Mikrowelle und einer Kaffeemaschine. Für weitere Essplätze kann die Höhe des Couchtisches verstellt werden und so noch Platz für insgesamt sechs Personen schaffen.
Das Schlafzimmer der Maisonette-Wohnung befindet sich in der oberen Etage, das mit einem luxuriösen großen Doppelbett ausgestattet ist. Durch die dort befindliche Glasschiebetür gelangen Sie auf die Terrasse, auf der sich Stühle und Tische befinden und die der ideale Ort ist, um schönes Wetter zu genießen. Bitte beachten Sie, dass die Terrasse nicht privat ist, da Sie mit der Wohnung nebenan geteilt wird. Das Badezimmer der Wohnung besteht aus einer Dusche, einer Badewanne und einem WC.
Die Wohnung befindet sich zwischen den NYC-Stadtvierteln West Village, Greenwich Village und Chelsea, die für ihr reges Nachtleben, zahlreiche Restaurants, Parks und eine Indoor-Sporthalle bekannt sind:
Die New Yorker U-Bahn erreichen Sie über die Stationen 14 Street / 6 Avenue (Linien F/M und L; 500 m), 14 Street / 7 Avenue (Linien 1/2/3; 200 m), 14 Street / Avenue (Linien A/C/E; 170 m) und 14 Street / Broadway: Union Square (Linien N/Q/R, 4/5/6 und L; 1 km).
|
Bewertung von: David H., 03. Sep. 2012 Aus: Vereinigte Staaten, Wohnungsvermietung: 4 Monate |
Insgesamt war meine Erfahrung mit dieser Wohnung sehr negativ. Als meine Freundin und ich ankamen, war die Wohnung noch dreckig vom vorherigen Mieter. Unter der Couch lag Essen und auf der Arbeitsfläche Essensreste. Wie lange die Bettwäsche nicht gewaschen wurde, war schwer zu sagen. |
|
Antwort vom: New York Kundenservice 05. Sep. 2012 |
Wir danken dir für deine ehrliche und detaillierte Bewertung, David. |