





































| Anfangsdatum | Enddatum | Personen | Monat | Informationen |
|---|---|---|---|---|
| jetzt | 1 |
$920 |
Informationen:Bedroom 3 - Electric and gas included - $20 for Wifi and cable |
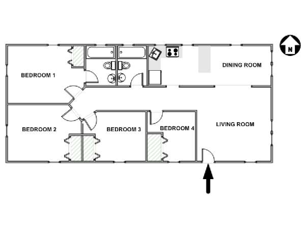
Diese 5-Zimmer-Wohnung mit zwei Badezimmern befindet sich im 2. Stock (entspricht in Europa dem 1. Stock) eines Zweifamilienhauses in der Nähe der 130th Avenue und 143rd Street im Stadtviertel Jamaica vom New Yorker Stadtbezirk Queens.
Bitte beachten Sie, dass diese Wohnung entweder als gesamte Wohneinheit als 5-Zimmer-Wohnung oder als geteilte Wohneinheit gemietet werden kann, wo in diesem Falle die vier Schlafzimmer separat gemietet und die Gemeinschaftsbereiche gemeinsam genutzt werden.
Bitte beachten Sie auch, dass das Gebäude mit Überwachungskameras ausgestattet ist. Sie dienen dem Schutz des Anwesens und seiner Bewohner.
Wenn Sie die 5-Zimmer-Wohnung mit 2 Badezimmern betreten, befinden Sie sich im Wohnbereich mit Sofas, wo Sie gemeinsam Zeit verbringen oder etwas auf dem Flachbildfernseher schauen können. Große Fenster sorgen für viel Tageslicht, während die Klimaanlage den Raum kühlt. Neben dem Wohnbereich befindet sich ein Essbereich direkt neben der Küche. Die Küche ist mit allem Notwendigen zum Zubereiten von Gerichten ausgestattet. Schränke bieten viel Stauraum und eine Halbinsel mit Barhockern sorgt für Sitzgelegenheiten zum Essen eines Snacks.
Das Schlafzimmer 1 hat eine türkisblaue Akzentwand und ein Queensize-Bett, einen Schrank und eine Kommode samt Spiegel. Das Badezimmer 1 ist nur vom Schlafzimmer 1 aus zugänglich und bietet eine Duschbadewanne. Das Schlafzimmer 2 verfügt ebenfalls über eine türkisblaue Akzentwand und ein Doppelbett, einen Nachttisch, Schrank und eine Kommode. Das Schlafzimmer 3 bietet eine himmelblaue Akzentwand und auch ein Doppelbett, einen Nachttisch, Schrank und eine Kommode. Das Schlafzimmer 4 hat eine gelbe Akzentwand und ein Einzelbett, einen Schrank und eine Kommode. Das Badezimmer 2 bietet eine Duschbadewanne und wird mit den anderen Schlafzimmern geteilt.
Der Stadtbezirk Queens bietet viele Freizeitbeschäftigungen im Freien und einfachen Zugang zum Stadtbezirk Manhattan. Wenn Sie sich in Jamaica in Queens im Freien entspannen wollen, können Sie den Baisley Pond Park besuchen, wo Sie Sport- sowie Spielplätze und Grillplätze bei einem großen Teich finden. Entlang des Rockaway Boulevard gibt es zahlreiche Restaurants, darunter das Rockaway Fish House mit frittiertem Fisch und Soul Food, Caribbean Style Cuisine (14507 Rockaway Boulevard) mit karibischem Essen zum Wohlfühlen und Chawlas2 (131-19 Rockaway Boulevard) mit indischen Spezialitäten wie Curry, Biryani und Tandoori. Erledigen Sie Ihren Einkauf im Junior's Food Outlet.
Die nächste U-Bahn-Station ist die Station Rockaway Boulevard / Liberty Avenue (Linie A). Nehmen Sie die Buslinie Q40, um die U-Bahn-Linien E, F, J und LIRR (Long Island Rail Road) zu nutzen.
|
Bewertung von: Hawa G., 09. Jan. 2022 Aus: Vereinigte Staaten, Vermietung Wohngemeinschaft: 4 Monate |
Sehr guter Gesamteindruck. Die Wohnung ist gut gelegen und sauber und die Vermieterin ist freundlich und schnell verfügbar. |
|
Bewertung von: Theodora D., 07. Okt. 2020 Aus: Vereinigte Staaten, Vermietung Wohngemeinschaft: 12 Monate |
Ich habe dieses Zimmer für 6 Monate gemietet und ich würde sagen, es ist ein großartiger Ort, in dem man sich wie zuhause fühlt. Die Vermieterin grüßt Sie immer mit einem Lächeln und versucht, es Ihnen komfortabel zu machen. Sie war sehr hilfsbereit bei unseren Bedürfnissen und kümmerte sich schnell um alle auftretenden Probleme. Die Wohnung und Bereiche wurden immer sauber gehalten. Ich wohnte hier alleine und konnte mich nirgendwo anders sicherer fühlen. Der Bus hält direkt vor dem Gebäude, wenn man schnell irgendwo hin möchte. |
|
Bewertung von: Megumi S., 17. Jul. 2020 Aus: Vereinigte Staaten, Vermietung Wohngemeinschaft: 12 Monate |
Ich bin fast drei Monate dort geblieben. Alle meine Mitbewohner sind freundlich, ruhig und verantwortungsbewusst in der Nutzung der Gemeinschaftsräume und Ausstattung. Die Küche, das Bad und Wohnzimmer sind immer sauber. Da die Wohnung möbliert war, musste ich beim Einzug nicht viele Sachen, kein Geschirr, keinen Fernseher und keine Küchenutensilien mitbringen. |
|
Bewertung von: Danny A., 09. Jul. 2020 Aus: Vereinigte Staaten, Vermietung Wohngemeinschaft: 6 Monate |
Abhängig von Ihrer Persönlichkeit könnte der Vermieter das größte Problem darstellen. Die Wohnung ist toll, die Umgebung ist ruhig und die Bewohner sind sehr respektvoll. Eine Regel besagt, dass man dem Vermieter Bescheid sagen muss, bevor man jemanden über Nacht einlädt. Im Gebäude und dem Umkreis ist Rauchen verboten. In der ganzen Wohnung gibt es Kameras, die der Vermieter regelmäßig auf unangemeldete Gäste kontrolliert. Öffentliche Transportmittel sind gut zu erreichen. |
|
Antwort vom: Betreuer der Wohngemeinschaft 16. Jul. 2020 |
Daniel, danke für Ihre Rezension. Ich freue mich, dass die Wohnung Ihnen gefallen hat. Es tut mir leid zu hören, dass Sie eine nicht zufriedenstellende Erfahrung mit den Regeln hatten. Die Regeln, die Sie erwähnen, sind als Bedingungen im Mietvertrag und der Mitbewohnervereinbarung genannt, welche Sie vor Abschluss und Verlängerung derer lesen und unterschreiben müssen. Da diese Wohnung eine WG ist, sind Regeln notwendig, um den Komfort und die Sicherheit aller Bewohner zu gewährleisten. Gäste dürfen über Nacht bleiben, wenn uns Bescheid gesagt wird. Wir sind der Meinung, dass es nicht in unserem besten Interesse ist, unbekannte Personen in oder nahe dem Gebäude zu haben, da es ein Sicherheitsrisiko darstellt. Wie lange Gäste in der Wohnung sind, ist auch relevant. Wir denken, dass wir diesbezüglich sehr tolerant sind, aber es wäre anderen Mitbewohnern gegenüber nicht fair, unangekündigte Gäste wochenlang zu beherbergen. |