


















| Anfangsdatum | Enddatum | Personen | Monat | Informationen |
|---|---|---|---|---|
| Zur Zeit keine Verfügbarkeit | ||||
Diese möblierte 7-Zimmer-Wohnung befindet sich im Herzen von Bedford-Stuyvesant und bietet eine Dachterrasse. An der Ecke Willoughby Avenue und Tompkins Avenue gelegen, sind Sie mitten im kulturellen Zentrum Brooklyns, mit internationaler Küche, gutem Essen und nur eine U-Bahnfahrt von Manhattan entfernt.
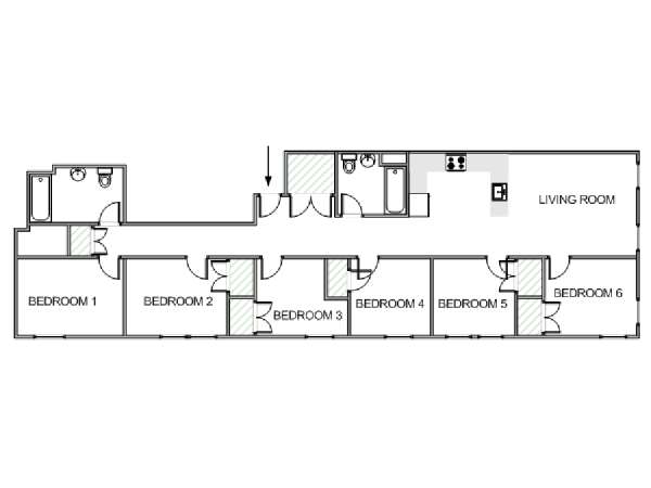
Diese 93 m2 große 7-Zimmer-Wohnung liegt im 3. von 4 Stockwerken (entspricht in Europa dem 2. Stock) eines Gebäudes aus dem Jahr 1931. Beim Betreten der Wohngemeinschaft werden Sie von einem frischen und modernen Ambiente begrüßt. Dieses Ambiente bietet in Kombination mit der historischen Nachbarschaft eine gute Mischung aus beiden Welten. Im Wohnzimmer finden Sie ein Sofa, eine Klimaanlage, einen Fernseher und zwei große Fenster. Diese WG hat ein offenes Raumkonzept, das vom Wohnzimmer in die Küche übergeht. In der Küche gibt es einen Kühlschrank, eine Mikrowelle, eine Kaffeemaschine, einen Toaster, eine Spülmaschine und einen mit einem Vier-Flammen-Herd mit Ofen. An der Küchentheke stehen außerdem vier Barhocker, auf denen Sie Ihre Mahlzeit genießen können, die aber auch Platz für Gäste machen. Die sechs Schlafzimmer sind alle ähnlich, aber alle mit einer anderen Aufteilung. Jedes Schlafzimmer ist modern eingerichtet und enthält ein Doppelbett, Bettwäsche, eine Klimaanlage und ein großes Fenster mit Blick auf die Nachbarschaft. Die Ausstattung der Schlafzimmer ist unterschiedlich, aber alle haben einen modernen Look. Die WG hat zusätzlich zwei Badezimmer, jedes mit einer Duschbadewanne, Handtüchern, einem WC, einem Waschbecken mit Unterschrank und das erste Badezimmer hat zudem ein Fenster. Die Räume sind mit Hartholzböden ausgelegt und Sie haben Zugang zu einer Waschmaschine und einem Trockner. Darüber hinaus gibt es im Gebäude einen Aufzug und eine Dachterrasse.
Mitten im Zentrum des kulturellen Viertels von Brooklyn gelegen, bietet Bed-Stuy alles, was das Herz begehrt: ob Kleidung, Antiquitäten, Restaurants oder Cocktailbars – in Bed-Stuy ist immer etwas los. Entdecken Sie Ihr Viertel bei einem Spaziergang und bewundern Sie die Reihenhäuser aus dem 19. Jahrhundert, die auch heute noch gut erhalten sind. Sie repräsentieren das alte New York mit einem modernen und hippen Touch. Gehen Sie zum Frühstück, Mittag- oder Abendessen in einem der neuen Restaurants in Ihrer Nachbarschaft und genießen Sie die traditionelle oder kulturelle Küche. Am Abend können Sie die Reise fortsetzen, indem Sie in einer der vielen Cocktailbars in Bed-Stuy einen Drink genießen. Möglicherweise treffen Sie dabei auf jemanden Berühmten. Brooklyn ist bekannt dafür, dass es hier einige der besten Geschäfte für Vintage-Kleidung und Antiquitäten gibt. Also sehen Sie sich tagsüber an, was es damit auf sich hat und kaufen Sie ausgiebig ein. Nur 80 m entfernt befindet sich die U-Bahnstation Myrtle-Willoughby Avenue mit Anschluss an die Linie G. In nur 15 Gehminuten (1,1 km) erreichen Sie die U-Bahnstation Myrtle Avenue mit Anschluss an die Linien J, M und Z. Von dort aus können Sie auf der Brooklyn Promenade spazieren gehen und den Blick auf Lower Manhattan und die drei berühmten Brücken genießen: die Brooklyn Bridge, die Manhattan Bridge und die Williamsburg Bridge. Und falls Sie in Brooklyn alles gesehen haben, was Sie wollten, ist Manhattan nur eine U-Bahnfahrt entfernt, um weitere Entdeckungen zu machen.