



































































| date de début | date de fin | capacité | mois | information |
|---|---|---|---|---|
| maintenant | 4 |
€6 450 |
information:Charges fee included - 3 to 6 month rentals. |
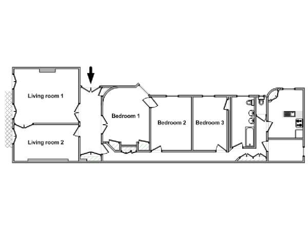
Cet appartement T4 se situe dans le quartier du Luxembourg à Paris. Il se trouve au troisième étage d’un immeuble haussmannien avec ascenseur. L’accès au bâtiment est sécurisé grâce à un système de digicode et d’interphone.
L’emplacement de cet appartement est exceptionnel, juste en face du Jardin du Luxembourg. D’ailleurs, cet appartement T3 offre une vue sur ce jardin ainsi que sur le palais!
Cet appartement haussmannien typique dispose d’un ancien plancher, de moulures ainsi que d’une cheminée décorative. Un long couloir permet d’accéder à la cuisine, aux toilettes et à la deuxième chambre. Les trois chambres sont exposées nord et offrent une vue sur la cour de l'immeuble, tandis que le salon et salle à manger ont des fenêtres à double vitrage exposées ouest donnant sur la rue.
Cet appartement meublé se situe dans le quartier du Luxembourg, rue Médicis, juste en face du Jardin du Luxembourg à Paris. Le Jardin du Luxembourg et son palais ont été construits au début du XVIIème siècle, à la demande de Marie de Médicis. Les jardins sont aujourd’hui ouverts au public, offrent différentes activités culturelles et disposent de nombreuses sculptures et fontaines, comme par exemple la fontaine Médicis. Depuis 1799, le palais du Luxembourg est le siège du Sénat français. Non loin de l’appartement, vous trouverez le quartier Saint-Michel avec ses librairies, son charmant quartier étudiant, le quartier latin, proche de la célèbre université française de la Sorbonne. De l’autre côté de l’immeuble, vous trouverez Saint-Germain des Prés, avec ses nombreuses galeries d’art, ses restaurants et ses brasseries comme l’Alcazar ou la célèbre boîte de nuit Castel.