







































| date de début | date de fin | capacité | mois | information |
|---|---|---|---|---|
| 01 sept. 2026 | 2 |
€2 200 |
information:3 months minimum - Electric, gas, heat not included - Internet & Cable included |
Séjournez au cœur d’une île pittoresque du 4ème arrondissement de Paris, la Ville Lumière, dans ce studio T1 romantique sur l’île Saint-Louis.
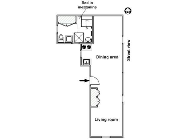
Situé à l’angle de la rue des Deux-Ponts et du quai d’Orléans, cet appartement se trouve au 4ème étage d’un immeuble de 5 étages du XVIIe siècle, dont l’entrée est protégée par un digicode. Veuillez noter que vous devrez monter des escaliers escarpés pour accéder à ce studio T1, ce qui peut poser problème.
D’une superficie d’environ 50 m², cet appartement charmant est décoré de moquette rouge vif et de rideaux assortis. Il y a deux canapés : un petit pour une personne et un deuxième convertible en lit double. À côté du canapé-lit, un renfoncement laisse apparaître un mur de pierres et sert de table de chevet avec ses étagères en verre. Vous trouverez également dans l’hébergement une télévision câblée à écran plat avec lecteur DVD, une table à manger pour quatre personnes et un coin cuisine séparé équipé d’un mini-réfrigérateur, de quatre plaques de cuisson électriques, d’un four à micro-ondes et de rangements. Les fenêtres donnent sur la Seine et offrent une vue d’ensemble sur la capitale.
L’île Saint-Louis, à Paris, est une île pittoresque peu visitée des touristes, qui lui préfèrent l’île de la Cité où ils peuvent admirer la cathédrale Notre-Dame. Pourtant, cette île est un vrai trésor aux yeux de ses habitants. Les fenêtres de l’appartement donnent sur la Seine et sur la rue qui vous rattache au reste de Paris. Sur l’île, nous vous suggérons d’aller faire du shopping dans la rue Saint-Louis-en-l’Île (90 m), de goûter une glace chez Berthillon, au 31 rue Saint-Louis-en-l’Île (110 m), et de passer vos soirées au Franc Pinot, un ancien cabaret converti en bar et un lieu culte de l’île depuis le XVIIe siècle (180 m). Bien entendu, cet appartement est à deux pas du reste de la ville, et vous pourrez accéder facilement aux attractions touristiques connues dans le monde entier. Visitez notamment le quartier du Marais (1,3 km), la cathédrale Notre-Dame (550 m) sur l’île de la Cité et l’hôtel de ville de Paris (900 m).
Pour voyager en transports en commun dans la capitale, prenez la ligne 7 du métro à la station Pont Marie (350 m).
|
Avis de : Kristine Y., 04 août 2014 De : Etats-Unis, Location meublée de : 3 mois |
L'appartement est petit mais bien conçu pour faire le meilleur usage possible de l'espace dont il dispose. De bons espaces de rangements et placards. Meublé intelligemment avec tout le nécessaire pour y passer confortablement un séjour de longue durée ; comprend même des équipements appréciables tels qu'un aspirateur, un fer et une planche à repasser. TV-câble-Internet excellents, appels illimités vers les numéros de téléphone fixes de presque tous les pays. |
|
Avis de : Sonja L., 17 avril 2014 De : France, Location meublée de : 3 mois |
Bien que petit (18m²), c'est vraiment un très bel appartement avec une vue magnifique sur la Seine. Meublé intelligemment et avec goût, il est bien équipé et confortable. J'y ai passé trois très bons mois. Le contact avec le propriétaire qui s'est montré prévenant a toujours été facile et très agréable, même s'il s'est limité à des échanges de mails. |
|
Réponse du : Propriétaire de l'Appartement 08 mai 2014 |
Ca a était un vrai plaisir de vous avoir comme locataire. En plus, nous avons retrouvé l'appartement dans un état impeccable. Nous regrettons tout inconvénient causé par les aboiemments du chien de l'appartement à côté (palier de droite en montant l'escalier) qui, en effet, se trouve parfois seul pendant la journée. |
|
Avis de : Conrad I., 01 juil. 2011 De : Canada, Location meublée de : 3 mois |
Les propriétaires de la location meublée et tout le reste étaient géniaux. Le séjour dans cet appartement parisien compte parmi les meilleures vacances que j'ai connues! |
|
Réponse du : Propriétaire de l'Appartement 17 juil. 2011 |
Notre première location ( Conrad I.) à travers votre agence s'est déroulée sans complications et d'une maniére absolument satisfaisante. |