




































































| data d'inizio | data di fine | capacità | mese | informazione |
|---|---|---|---|---|
| 31-Ago-2026 | 1 |
$850 |
informazione:TENANT MAY EXTEND.Bedroom 5. 1 year minimum. Electric, cable, gas, heat & Wireless Internet included |
Nessuna voglia di venire nella grande città da soli? Affittare una stanza è un ottimo modo per diventare facilmente amico – dei tuoi coinquilini! Questa stanza in affitto dal prezzo conveniente in un appartamento con cinque camere da letto situata ad Harlem, Manhattan potrebbe essere perfetta per te.
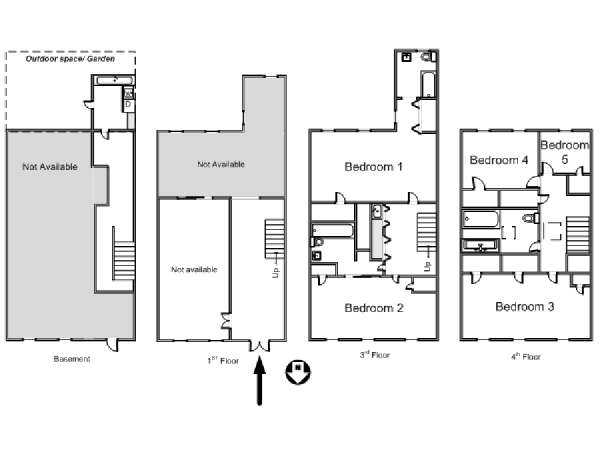
Situata sulla West 121st Street & Lenox Avenue, questa stanza in affitto in un appartamento con cinque camere da letto si trova al terzo e quarto piano americano (equivalente al secondo e terzo piano europeo) di un edificio prebellico brownstone a quattro piani. L’utilizzo della scala è necessario per accedere alle camere. La proprietà è fornita di lavatrice e asciugabiancheria condivise situate nel seminterrato, e di un giardino con barbecue. Un sistema di sicurezza con citofono controlla l’accesso all’edificio.
Nota: Questa è una stanza in affitto in un appartamento condiviso. Solo la camera da letto (ed in alcuni casi un bagno) sarà privata. Tutte le altre stanze (soggiorno, cucina) saranno condivise con i coinquilini.
Ogni camera da letto privata presenta le così amate caratteristiche prebelliche come soffitti alti e pavimenti di legno massiccio. Tutte le camere da letto tranne la numero 5 includono grandiosi e bellissimi caminetti decorativi. Modanature in legno rifiniscono le porte d’ingresso e le finestre conferendo ad ogni stanza un’atmosfera accogliente e vecchio stile.
Le camere da letto 1, 2 e 3 sono provviste di letti matrimoniali (queen-size), televisioni via cavo private, e scrivanie o tavoli per lo spazio di lavoro. La camera da letto 3 include anche un divano d’epoca. Le camere da letto 1 e 2 includono un annesso bagno privato riservato all’affittuario.
Le camere da letto 4 e 5 sono fornite ciascuna di letto ad una piazza e mezza (double bed) e televisione via cavo privata. La camera da letto 4 offre cassettiere in legno con cassetti per il deposito di indumenti, una poltrona per gli ospiti, ed un comodino in vetro. La camera da letto 5 include uno spazioso armadio per il deposito degli indumenti ed una lunga scrivania in legno per lo spazio di lavoro.
Gli affittuari delle camere 3, 4 e 5 condivideranno il bagno 3. Un bagno piuttosto grande fornito di un’antica vasca da bagno. La cucina (condivisa con tutti gli affittuari) offre i necessari elettrodomesti per la cucina, così preparare a casa i vostri pasti preferiti sarà facile!
Situato nello storico quartiere di Harlem, Manhattan quest’appartamento condiviso è a pochi passi dal Marcus Garvey Park (66m). Strutture indispensabili al fabbisogno e negozi circondano la casa: c’è un supermercato, Pathmark, a solo 1km ed un negozio di beni di prima necessità/farmacia, Rite Aid, a 550m dall’alloggio. Attrazioni facilmente raggiungibili a piedi includono il The Studio Museum in Harlem (600m),l’ Apollo Theater (900m) e il National Jazz Museum in Harlem (1km).
Per il trasporto pubblico attorno New York, utilizzare le linee 2 e 3 in 125 Street / Lenox Avenue (400m).
|
Opinione di: Clara R., 08-Gen-2020 Di: Stati Uniti, Affitto appartamento da dividere: 13 mesi |
Ho solo buone parole per la casa e i suoi proprietari. Il posto è ottimo. Ha tutto quello di cui avete bisogno. La casa è come nelle foto (di persona è anche più bella). |
|
Opinione di: Lou S., 29-Nov-2019 Di: Francia, Affitto appartamento da dividere: 3 mesi |
I padroni di casa sono molto cordiali e comprensivi. L'unico inconveniente è la cucina che è davvero orribile e la mancanza di una sala comune che non facilita la comunicazione con gli altri coinquilini. |
|
Risposta dell': Ospitante della Stanza in Affitto 18-Gen-2020 |
È stato un piacere averti con noi la scorsa estate Lou. Sei stato un ottimo ospite. Siamo d'accordo, l'angolo cottura non sia una cucina completa e no, non c'è una stanza comune a disposizione degli ospiti per riunirsi, quindi la tua recensione ci sembra molto giusta e accurata. Grazie per il suo soggiorno con noi, abbiamo gradito la sua presenzt. Buona fortuna per tutti i vostri progetti futuri. |
|
Opinione di: Caleb R., 23-Gen-2019 Di: Stati Uniti, Affitto appartamento da dividere: 12 mesi |
I coinquilini e i padroni sono persone molto gentili. È un piacere vivere con loro. La camera è grande e il palazzo è tenuto pulito. Il cucinino è funzionale e il bagno è spazioso. È opportunamente posizionata vicino alla metropolitana, a negozi di alimentari, ristorante e al Marcus Garvey Park. |
|
Opinione di: Andres V., 15-Ago-2018 Di: Stati Uniti, Affitto appartamento da dividere: 2 mesi |
Sono stato molto bene durante il mio soggiorno qui. I proprietari non si aspettavano molto, oltre al tenere in ordine e rispettare gli altri ospiti. Sono stato qui per ~ 3 mesi durante il mio tirocinio a Midtown. Fare il pendolare è stato semplice e relativamente veloce (20 minuti per raggiungere Times Square). Molto vicino ai ristoranti più rinomati di Harlem. |
|
Opinione di: Sharon W., 09-Lug-2017 Di: Stati Uniti, Affitto appartamento da dividere: 12 mesi |
Vivere qui è stato meraviglioso. I padroni di casa sono persone incredibili ~premurose e attente. |
|
Risposta dell': Ospitante della Stanza in Affitto 25-Lug-2017 |
Ci è dispiaciuto vedere Sharon andarsene! Era un piacere averla attorno, un'ottima amica e gran chiacchierona. Siamo molto contenti per la svolta alla sua carriera e dispiaciuti per la sua temporanea lontananza da New York, ma sappiamo che tornerà e tifiamo per lei! |
|
Opinione di: Giulia C., 04-Set-2016 Di: Italia, Affitto appartamento da dividere: 3 mesi |
Ho veramente apprezzato il mio soggiorno di un mese nell?appartamento di Richard e Celeste, sono davvero gentili. L?unica cosa che a volte è stata stressante è la piccola dimensione della cucina. Ma sono molto soddisfatta del mio soggiorno e raccomando questa casa! |
|
Risposta dell': Ospitante della Stanza in Affitto 16-Set-2016 |
Ciao Giulia, |
|
Opinione di: Joanna M., 01-Lug-2016 Di: Stati Uniti, Affitto appartamento da dividere: 8 mesi |
R e C non potevano essere padroni di casa più socievoli e scrupolosi. Fanno molta attenzione ai bisogni di ciascuno e sono semplicemente amabili. La stanza è riscaldata tutto l'anno ed è fornita di tutto come indicato nella descrizione. Consiglio vivamente di prendere in affitto una stanza qui. |
|
Risposta dell': Ospitante della Stanza in Affitto 08-Lug-2016 |
Joanna, è stato un piacere averti con noi. Crediamo che il tuo sia stato in assoluto il primo paio di sci a entrare in questa casa! Siamo contenti che ti sia divertita molto e speriamo continuerai a farlo. Goditi la tua nuova casa e il successo nella carriera letteraria. |
|
Opinione di: Oluwadara Lydia O., 19-Lug-2015 Di: Stati Uniti, Affitto appartamento da dividere: 5 mesi |
I padroni di casa sono fantastici! Così accoglienti, premurosi e cordiali. La posizione è molto buona, nelle vicinanze di molte stazioni della metropolitana, ristoranti e negozi di alimentari. L'edificio stesso è molto bello, pulito con un ambiente piacevole e inserito perfettamente nella realtà newyorkese. La lavanderia e l'uso degli elettrodomestici sono gratuiti. Anche l'isolato in sé è davvero bello: mi è piaciuto molto percorrerlo a qualsiasi ora della notte o semplicemente sedermi sulle scalinate per leggere. Se mi dovesse capitare di ritrovarmi nuovamente a NYC per un lungo periodo mi piacerebbe moltissimo poter stare nuovamente in questa stanza in affitto! |
|
Opinione di: Livia J., 04-Ago-2014 Di: Francia, Affitto appartamento da dividere: 2 mesi |
La camera da letto che ho affittato era semplicemente perfetta, i proprietari erano molto gentili e mi hanno aiutato ogni volta che ne avevo bisogno. La cucina era un po' piccola ma andava bene. Avevo tutto quello che mi serviva. Non vedo l'ora di tornare di nuovo a New York! |
|
Risposta dell': Ospitante della Stanza in Affitto 06-Ago-2014 |
È stato un piacere averti qui. Ci hai raccontato le tue esperienze ed eri sempre gradevole e affascinante. Ti auguriamo tantissima fortuna e buona fortuna con la tua collezione di fiori. |
|
Opinione di: Anne-sophie G., 02-Giu-2014 Di: Francia, Affitto appartamento da dividere: 5 mesi |
L'appartamento è molto spazioso ed ha vari armadi e scaffali. Ho soggiornato lì per 5 mesi ed è stato fantastico. L'appartamento è vicinissimo ad una linea della metro. Le foto del sito rispecchiano perfettamente la realtà , quindi nessuna spiacevole sorpresa! |
|
Opinione di: Côme W., 30-Ott-2012 Di: Canada, Affitto appartamento da dividere: 4 mesi |
L'unico lato negativo è la cucina. Era tutto ottimo, tranne quello. I proprietari sono stati gentili, la camera era letteralmente ENORME. Il bagno era carino. Tutto perfetto. |
|
Risposta dell': Ospitante della Stanza in Affitto 10-Nov-2012 |
Grazie, Côme, per aver scelto di soggiornare da noi. Ci è piaciuto molto averti qui. Il tuo senso dell'umorismo e il tuo entusiasmo sono contagiosi. Non siamo sorpresi che il piccolo angolo cottura non fosse adeguato alle tue esigenze. Sei sulla strada giusta per diventare un grande cuoco! Siamo felici di sapere che il tuo tirocinio è andato bene e ti auguriamo di andare avanti con successo nella tua carriera. |
|
Opinione di: Pasqualino M., 10-Mag-2012 Di: Stati Uniti, Affitto appartamento da dividere: 5 mesi |
Celeste ed il marito, sono i proprietari, sono due persone molto disponibili e ti lasciano massima libertà. Non mai avuto problemi con loro e sono sempre disponibili ad aiutarti se hai problemi. |
|
Risposta dell': Ospitante della Stanza in Affitto 13-Mag-2012 |
É stato un piacere ospitarlo qui. Grazie per aver condiviso vino e caffé. |
|
Opinione di: Cristiano P., 03-Dic-2011 Di: Italia, Affitto appartamento da dividere: 2 mesi |
propietari disponibilissimi e molto gentili, onsigliabile |
|
Risposta dell': Ospitante della Stanza in Affitto 13-Mag-2012 |
Come avrà fatto a godersi la stanza in affitto, Harlem o New York, visto che lavorava così tanto? Gli auguriamo buona fortuna per il futuro! |
|
Opinione di: Un Co-Inquilino, 24-Ott-2011 Di: Francia, Affitto appartamento da dividere: 6 mesi |
Richard e Celeste erano fantastici. Molto amichevoli e disponibili quando gli facevo delle domande. Mi sono trovato molto bene nell'appartamento e lo consiglio assieme al quartiere. |
|
Risposta dell': Ospitante della Stanza in Affitto 24-Ott-2011 |
É stato un piacere ospitarli, sono davvero simpatici! |