

























| data d'inizio | data di fine | capacità | mese | informazione |
|---|---|---|---|---|
| adesso | 1 |
$1,300 |
informazione:Bedroom 2 - Utilities and household expenses are not included | |
| 1 |
$1,300 |
informazione:Bedroom 1 - Utilities and household expenses are not included |
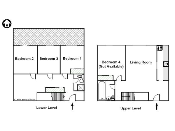
Questa stanza in affitto si trova a metà strada tra il Central Park e l'East River, all’interno di un appartamento con quattro camere da letto all’incrocio tra la East 105th e la 2nd Avenue, nella zona di Harlem. Qui non troverete altissimi grattacieli o grandi masse di turisti, ma piuttosto un quartiere dall’atmosfera ben distesa, e in grado di offrire qualcosa di interessante a ogni tipo di persona. Questo appartamento su due piani occupa il 1° e 2° piano (equivalent a un piano terra e un 1° piano in Europa) di un edificio di 7 livelli eretto nel 2002 e dotato di sala lavanderia e di un sistema di sicurezza al’ingresso.
La stanza in affitto (camera 1 nella cartina dell’appartamento) si trova al piano terra del palazzo, è arredata con un letto singolo, un armadio e un comò (all’interno dei quali è possibile custodire i propri effetti personali), una TV via cavo e un mini-frigo. Ma l’elemento clou di questa stanza da letto è rappresentato dalla possibilità di accedere direttamente (ed esclusivamente) al cortile! Avrete sicuramente modo di apprezzare il fatto di poter disporre di uno spazio esterno nella cui cornice potrete trascorrere qualche piacevolissimo momento di relax e assaporare i raggi del sole durante i mesi estivi, o ancora sorseggiare un ottimo drink dopo il lavoro o le dure lezioni! Il bagno è in condivisione con i compagni di appartamento. Salendo al primo piano troverete poi la cucina, attrezzata con tutto il necessario: dal forno al forno a microonde, a una macchina per il caffè a un tostapane.
* Si segnala che non è possibile accedere alla zona soggiorno *
Nei dintorni dell’appartamento con quattro camere da letto troverete ogni tipo di servizio: da un supermercato della catena "Fine Fare'' nello stesso isolato, ad alcune farmacie a un isolato più a nord lungo la 106th Street e tantissimi negozietti all’interno dei quali prendere il proprio caffè mattuttino o acquistare qualche genere alimentare che ci si è dimenticati di comprare al supermercato. Ma c'è ovviamente molto più da vedere e da visitare in questa parte di Manhattan :
- Il Museum Mile: così viene chiamata la Fifth Avenue tra la 82nd e la 110th Street, dato che la zona ospita ben 10 musei, che donano ricchezza e diversità culturale all’Upper East Side e ad Harlem. Tra i tanti El Museo del Barrio, che offre una davvero eccellente collezione di arte latino-americana, o il Museo della città di New York, dedicato alla cultura, alla gente e al passato della Grande Mela, entrambi a meno di un km di distanza. Percorrete solo ancora per un po’ la 88th e la 82nd Street e vi ritroverete davanti al Museo Guggenheim e al MET (il Metropolitan Museum of Art).
- Central Park: non c’è nemmeno probabilmente bisogno di presentarvi questo enorme parco nel cuore di New York, paradiso per chi ama passeggiare, per gli atleti o per chi sogna ad occhi aperti; l’enorme area verde offre la possibilità di trascorrere un’intera giornata dedicata allo sport, alle passeggiate o semplicemente a godersi i dintorni del parco o a rilassarsi all'ombra di un albero!
- Ristoranti: camminate per 10 isolati in direzione nord lungo la 116th Street e troverete molti ristoranti a prezzi accessibili, tra cui alcuni dei migliori ristoranti messicani di New York (consigliamo caldamente Taco Mix, Sandy o El Nuevo Caridad). E se vi va di assaggiare la tipica piazza di New York (con la crosta sottile), passeggiate per poco più di un km in direzione nord, fino a raggiungere Patsy’s pizza.
Questa zona è servita dalla linea 6, che ferma alla stazione della metropolitana di 103 Street/Lexington Avenue, e che vi porterà a nord verso il Bronx, oppure a sud verso Lower Manhattan o Brooklyn, passando anche per Grand Central Station, un centro intermodale che vi garantisce accesso ad altre linee della metropolitana e ai treni diretti verso le città limitrofe.
|
Opinione di: Un Co-Inquilino, 08-Dic-2025 Di: Stati Uniti, Affitto appartamento da dividere: 3 mesi |
La proprietaria è gentilissima! |
|
Opinione di: Un Co-Inquilino, 29-Gen-2024 Di: Repubblica ceca, Affitto appartamento da dividere: 5 mesi |
Ottima posizione. Ottimo proprietario. |
|
Opinione di: Nindyo S., 13-Set-2022 Di: Stati Uniti, Affitto appartamento da dividere: 12 mesi |
Il posto è eccezionale! La prima volta che ho visto la camera, me ne sono innamorato. Avevo una camera più grande al primo piano, completamente arredata e decisamente silenziosa. Il letto queen-size è anche comodo. Avevo il mio frigorifero per sistemare le mie cose e potevo usare la cucina al piano superiore. L'aspetto più rilevante sta nell'ospitalità di Izamar e Helio. Vi basta dire ciò di cui avete bisogno e Izamar ed Helio sono più che disposti ad aiutarvi. Non sarete mai delusi vivendo nella casa di Izamar! |
|
Opinione di: Margaux C., 16-Ott-2016 Di: Francia, Affitto appartamento da dividere: 6 mesi |
Ho amato soggiornare in questo appartamento. Si trova in un?ottima posizione, tranquillo, pulito e la famiglia ci ha accolti come se ci conoscessimo da sempre. Raccomando caldamente questo appartamento. |
|
Opinione di: Brendon C., 18-Ago-2015 Di: Stati Uniti, Affitto appartamento da dividere: 12 mesi |
La mia esperienza in questo appartamento è andata oltre le aspettative che avevo quando mi sono traferito a New York. Sono arrivato in città per motivi scolastici e avevo bisogno di un appartamento che fosse vicino a una fermata della metro, abbastanza tranquillo per studiare e ammobiliato, così non avrei dovuto portare niente con me. La location offre di tutto e di più! Qui sotto recensirò le varie qualità degli aspetti più importanti: Quartiere, Trasporti, Stanza, Edificio e Persone. |
|
Opinione di: Kévin K., 04-Set-2014 Di: Francia, Affitto appartamento da dividere: 2 mesi |
Il punto di forza di quest'appartamento è la sua posizione vicino alla stazione della metropolitana. Nei dintorni ci sono un sacco di negozi, ristoranti, parrucchieri, ecc. La famiglia ospitante è molto gentile e accogliente. |
|
Opinione di: Jennifer R., 23-Apr-2014 Di: Germania, Affitto appartamento da dividere: 7 mesi |
Sono stata super felice di aver soggiornato in questo appartamento! |