


















| data d'inizio | data di fine | capacità | mese | informazione |
|---|---|---|---|---|
| 01-Lug-2026 | 2 |
€1,590 |
informazione:Electric, heat, cable and Wifi Internet included |
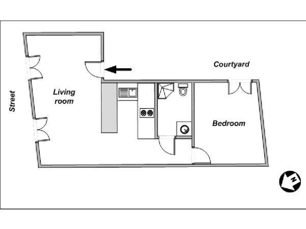
Questo appartamento con una camera da letto è situato al di fuori del Louvre nel primo arrondissement di Parigi su Rue Jean Jacques Rousseau tra Rue Saint Honoré e Rue du Pélican. L’appartamento si trova al quarto piano di un edificio a 5 piani senza ascensore, risalente al 19esimo secolo, dotato di un sistema di sicurezza con codice.
Questo appartamento situato a Parigi combina elementi classici parigini come le travi di legno a vista e la pavimentazione in legno massiccio con un arredamento contemporaneo. Nel soggiorno il divano letto a una piazza e mezza e la libreria creano un’atmosfera accogliente. Cucinare nel vostro appartamento sarà un piacere, grazie alla cucina a vista super attrezzata di forno, frigo e forno a microonde. Il bagno è composto da doccia, WC e doppio lavabo. Per un’ulteriore comodità avete a vostra disposizione anche una lavatrice /asciugatrice.
Quello del Louvre è uno dei quartieri più visitati di Parigi! Grazie agli innumerevoli ristoranti, parchi e musei famosi, questa zona offre sempre tantissime cose da fare, da vedere o da provare:
Dal vostro appartamento con una camera da letto sarà facilissimo prendere i mezzi di trasporto pubblici. Le stazioni metro più vicine sono Louvre-Rivoli (linea 1, 160 m) e alla Palais Royal-Musée du Louvre (linee 1 e 7, 350 m).