Menü

Ferienwohnung in New York - 5 Zimmer - Harlem (NY-15383)

Noch nicht bewertet
Preis
AUSGEBUCHT
Vermittlunggebühr inbegriffen
Benötigen Sie Hilfe? Rufen Sie uns an:
New York: +1 (212) 255-8018+1 (212) 255-8018 i 9:00 bis 18:00 Uhr
Ortszeit New York
Montag bis Sonntag
Samstag & Sonntag: info@nyhabitat.com
Verfügbarkeit
Anfangsdatum Enddatum Personen Tag Woche Informationen
Zur Zeit keine Verfügbarkeit
Zur Zeit keine Verfügbarkeit

Beschreibung
5 Zimmer - Harlem (NY-15383)
5 Zimmer - Triplex, 3 Badezimmer, 1 WC - Personen
Wohnungsbeschreibung auf Englisch: 5 Zimmer - Triplex - New York (NY-15383)
Ausstattung:
  • Fernseher,
  • Kamin,
  • Internet,
  • Waschmaschine in der Wohnung,
  • Wäschetrockner,
  • Balkon,
  • Tiere nicht erlaubt,
  • Rauchen nicht gestattet,
  • Kein Aufzug
Wohnlage
Stadtplan: New York Ferienwohnung - West 121st Street & Lenox Avenue New York, NY 10027
U-Bahn i Diese Stadtpläne/ Wegbeschreibungen dienen nur zur Information. Es wird keine Garantie für den Inhalt, Strassenzustand oder die Durchführbarkeit übernommen. Der Benutzer übernimmt jegliche Verantwortung für die Nutzung. Google Maps, New York Habitat und ihre Anbieter übernehmen keine Verantwortung für eventuelle Verluste oder Säumnisse, die aus dem Gebrauch enstehen können.
  • Linien A, B, C, D. Station 125 Street / Saint Nicholas Avenue
  • Linien B, C. Station 116 Street / 8 Avenue
  • Linien 2, 3. Station 116 Street / Lenox Avenue
  • Linien 2, 3. Station 125 Street / Lenox Avenue
Zimmer
  • Wohnzimmer
  • Küche
  • Schlafzimmer
  • Badezimmer
  • Andere
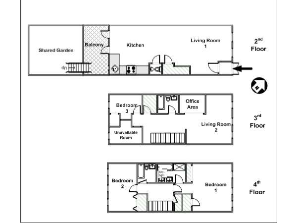
  • Layout
Wohnzimmer # 1
Merkmale: Fenster, Sofa, Esstisch
Wohnzimmer # 2
Merkmale: Fenster, Fernseher, Sofa
Küche
Merkmale: Fenster, amerikanisch, separat, Kühlschrank, Backofen, Geschirrspüler, Mikrowelle, Gefrierfach, Kaffeemaschine, Toaster
Schlafzimmer # 1
Merkmale: Bettlaken, Fenster
Anz. Betten: 1
Grösse des Bettes: bett (einzel)
Schlafzimmer # 2
Merkmale: Bettlaken, Fenster
Anz. Betten: 1
Grösse des Bettes: bett (einzel)
Schlafzimmer # 3
Merkmale: Bettlaken, Fenster
Anz. Betten: 1
Grösse des Bettes: bett (doppel)
Schlafzimmer # 4
Merkmale: Bettlaken, Fenster
Anz. Betten: 2
Grösse des Bettes: bett (doppel), bett (king)
Badezimmer # 1
Merkmale: Dusche, WC, Badewanne, Handtücher
Badezimmer # 2 (WC)
Merkmale: WC, Handtücher
Badezimmer # 3
Merkmale: Dusche, WC, Badewanne, Handtücher
Badezimmer # 4
Merkmale: Dusche, WC, Badewanne, Handtücher

Die Raumpläne auf unserer Webseite sind nicht massgerecht. Sie dienen vielmehr als Anhaltspunkt für ein generelles Layout und sind nur als Leitfaden gedacht. Sie sollen nicht als präzisen Plan gewertet werden und können auf keinen Fall garantiert werden.

Gesamtbewertungen & Kundenbewertungen
5 Zimmer - Harlem (NY-15383)
Es sind noch keine Ratings oder Bewertungen für diese Wohnung vorhanden

Über Cookies

Diese Webseite benutzt First Party-Cookies und Third Party-Cookies, um Ihnen eine bestmögliche Benutzererfahrung bieten zu können. Bitte akzeptieren Sie diese Cookies, sodass Sie die vollständigen Funktionen dieser Seite ausschöpfen können. Sollten Sie diese verweigern, könnte es sein, dass einige Webseitenfunktionen nicht richtig ausgeführt werden können (zum Beispiel Videos, Karten, Chat).

Ich stimme zu Ich lehne ab
Chat