































| Anfangsdatum | Enddatum | Personen | Monat | Informationen |
|---|---|---|---|---|
| 15. Mrz. 2026 | 2 |
€3.250 |
Informationen:1-2 month rental. Electricity not included. Internet, Cable, WiFi and Phone included. | |
| 2 |
€2.785 |
Informationen:9 months minimum. Electricity not included. Internet, Cable, WiFi and Phone included. | ||
| 2 |
€2.990 |
Informationen:2-9 month rental. Electricity not included. Internet, Cable, WiFi and Phone included. |
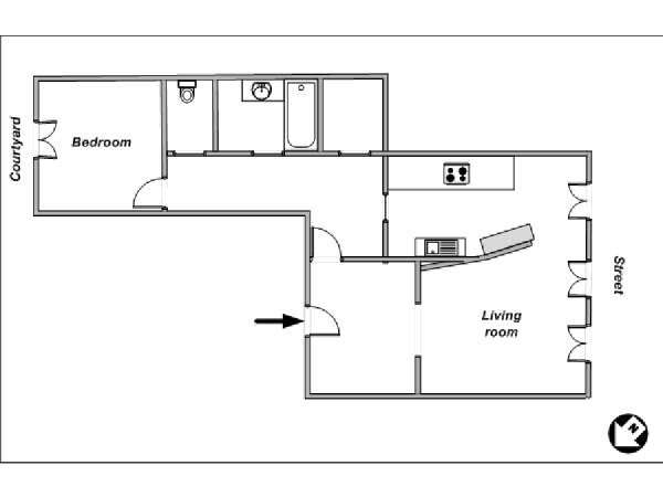
Diese 2-Zimmer-Wohnung befindet sich in der Gegend Porte Maillot in Paris, Frankreich. Die Wohnung liegt in der Nähe der Viertel Auteuil, Trocadéro und Passy in Paris.
Die Wohnung befindet sich in der Rue Weber zwischen der Rue Pergolese und dem Boulevard de l'Amiral Bruix. Die Wohnung befindet sich im 5. Stock eines 6-stöckigen Gebäudes aus der Vorkriegszeit, das über eine Gegensprechanlage verfügt. Man muss sowohl den Aufzug als auch die Treppen nehmen, um die Wohnung zu erreichen. In der Wohnung befinden sich eine Waschmaschine und ein Trockner.
Diese modern möblierte 2-Zimmer-Wohnung verfügt über Hartholzböden und große Fenster, die vom Boden bis zur Decke reichen. Durch die Lage im 5. Stock lassen die Fenster natürliches Sonnenlicht in die Wohnung. Das Wohnzimmer ist ausgestattet mit einem großen weißen Sofa und einzelnen, ausgefallenen Stühlen, die genug Sitzmöglichkeiten bieten. Ein Flachbildfernseher mit Kabelanschluss und Platz für sportliche Betätigung sind ebenfalls vorhanden.
Angrenzend an das Wohnzimmer befindet sich eine offene Küche mit großem Tresen, in der Sie ebenfalls essen können. Die Küche verfügt über reichlich Stauraum in den Hängeschränken und die wichtigsten Kochutensilien sind vorhanden.
Das Badezimmer verfügt über Fliesenboden, eine Waschmaschine und einen Trockner. Eine Duschbadewanne und ein Spiegel sind ebenfalls vorhanden. Die Toilette befindet sich in einem anderen Raum, vom Badezimmer abgetrennt durch eine Tür. Das Schlafzimmer verfügt über ein Bett in der Größe Queensize (1,50x2,00m) und ein Fenster, das den Innenhof überblickt und frische Luft hineinlässt. Das Schlafzimmer verfügt über viele dekorative Gardinen und vereint dunkle Farbtöne auf weißen Wänden, sodass eine ruhige und entspannte Atmosphäre entsteht. Ein Glastisch zum Arbeiten, Sportequipment und ein Schrank für Stauraum sind ebenfalls vorhanden.
Die umliegende Gegend von Porte Maillot befindet sich im 16th Arrondissement von Paris. Dieses kleine und atemberaubende Wohnviertel bietet nahegelegene Sehenswürdigkeiten wie kleine Museen, Cafés und kleine Geschäfte. Nachfolgend finden Sie einige Anregungen für Unternehmungen während Ihres Aufenthalts:
- Palais des Congrès: Dieses Geschäfts-/Kongresszentrum bietet am Abend Live Performances an. Das Zentrum befindet sich am 2 Place de la Porte Maillot, 75853 Paris.
- Rue Pergolèse: Diese Straße ist nur wenige Gehminuten von Ihrer Wohnung entfernt. Hier finden Sie Läden typisch für diese Gegend, einen Metzger, eine Bäckerei und das berühmte Godiva Schokoladengeschäft.
- das Musee d'Art Moderne de la Ville de Paris: Dieses Museum hat sich auf moderne Kunst spezialisiert. Das Museum befindet sich in der 11 Avenue du Président Wilson.
- das Musee Marmottan Monet: Dieses Museum befasst sich mit den impressionistischen Gemälden von Claude Monet. Das Museum befindet sich in der 2 Rue Louis-Boilly, 75016 Paris.
- das Viertel Passy: Erleben Sie das dorfähnliche Ambiente dieser malerischen Gegend. Passy befindet sich im 16. Arrondissement von Paris.
Den Zugang zum öffentlichen Nahverkehr von Paris erhalten Sie über die U-Bahnhaltestelle Porte Maillot, die die Linie 1 bedient (ca. 500m von der Wohnung entfernt). Ausserdem können Sie zur U-Bahnhaltestelle Argentine gehen, die ebenfalls die Linie 1 bedient (ca. 700m). Die berühmte Prachtstraße Champs-Élysées ist nur ein paar U-Bahnhaltestellen entfernt, genauso wie das Hochhausviertel La Défense mit dem modernen Triumphbogen und der Shoppingmall „Les Quatre Temps“.