Menu

Colocation à New York - Appartement T3 - Hamilton Heights, Uptown (NY-18208)

Pas encore noté
Prix
RÉSERVÉ
Frais d'agence non compris
Besoin d'aide? Appelez-nous :
New York : +1 (212) 255-8018+1 (212) 255-8018 i de 9h00 à 18h00
heure de New York
du lundi au dimanche
samedi & dimanche : info@nyhabitat.com
Disponibilité
date de début date de fin capacité mois information
Actuellement non disponible
Description
Appartement T3 - Hamilton Heights, Uptown (NY-18208)
T3, 1 Salle de bain - Capacité
Description de l'appartement en anglais: T3 - New York (NY-18208)
Équipements :
  • Climatisation,
  • TV,
  • Lecteur DVD,
  • Internet,
  • Lave-linge dans l'appartement,
  • Sèche-linge,
  • Balcon,
  • Animaux non autorisés,
  • Fumeurs non admis,
  • Pas d'ascenseur
Situation
Plan : New York Colocation - 147th Street et Convent Avenue New York, NY 10031
métro i Ces plans/itinéraires sont présentés pour information seulement. Aucune affirmation ni aucune garantie n'est donnée quant à leur contenu, l'état des routes ou la praticabilité des itinéraires. L'utilisateur accepte tout risque lié à l'utilisation des données diffusées. Google Maps, New York Habitat et leurs fournisseurs ne pourront être tenus responsables de tout retard ou perte résultant de cette utilisation.
  • Lignes A, B, C, D. Station 145 Street / Saint Nicholas Avenue
Pièces
  • séjour
  • cuisine
  • chambre
  • salle de bain
  • autre
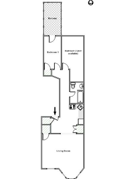
  • plan schématique
Pièces de l'appartement non disponibles pour cette location : chambre #2
Séjour
Caractéristiques : Climatisation, Fenêtre, TV, Canapé, Table à manger
Pièces de l'appartement non disponibles pour cette location : chambre #2
Cuisine
Caractéristiques : Américaine, Réfrigérateur, Four, Congélateur, Grille-pain
Pièces de l'appartement non disponibles pour cette location : chambre #2
Chambre
Caractéristiques : Draps, Fenêtre
Nb de lits : 1
Taille du lit : lit (simple)
Pièces de l'appartement non disponibles pour cette location : chambre #2
Salle de bain
Caractéristiques : Douche, WC, Baignoire, Serviettes
Pièces de l'appartement non disponibles pour cette location : chambre #2

Les plans dessinés sur ce site ne sont pas réalisés à l'échelle. Ils sont fournis à titre indicatif et ont pour seul but de donner une idée de la disposition d'ensemble. Les éléments qui y figurent ne pourront être considérés comme un plan exact, un exposé des faits ou quelconque garantie.

Évaluations & Avis Clients
Appartement T3 - Hamilton Heights, Uptown (NY-18208)
Pas encore d’avis client ni d’évaluation de l’appartement

À propos des cookies

Ce site Web utilise des cookies internes et des cookies tiers pour vous offrir la meilleure expérience utilisateur possible. Pour profiter de toutes les fonctionnalités du site, veuillez accepter ces cookies. Veuillez noter que si vous refusez, certaines fonctionnalités du site Web peuvent ne pas fonctionner pleinement (par exemple les vidéos, les cartes, le chat).

J'accepte Je refuse
Chat