




















| date de début | date de fin | capacité | mois | information |
|---|---|---|---|---|
| 01 déc. 2026 | 1 |
$1 098 |
information:Bedroom 4: Utilities and household expenses not included. |
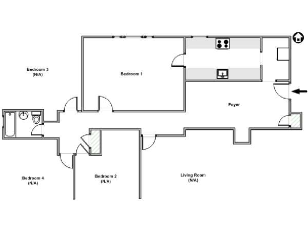
Cet appartement T5, dont trois chambres sont à louer, est situé à Washington Heights, un quartier d'Uptown dans Manhattan à New York. L'appartement se trouve au cinquième étage d'un immeuble datant de 1924 qui en comprend six, et qui est doté d’un ascenseur. L'entrée du bâtiment est sécurisée par un vidéophone, et il y a également une buanderie et une connexion internet sans fil.
La location meublée est exposée au nord, à l'ouest et à l'est. Son sol est recouvert de parquet, de carrelage et de moquette. Bien que chaque chambre à louer soit privative, les colocataires devront partager les espaces communs comme la cuisine et la salle de bain n°1. La cuisine comporte des éléments blancs qui présentent beaucoup de rangements ainsi que des plans de travail dont le bois sombre est assorti aux tabourets et au bar-comptoir. Elle comprend tous les équipements et ustensiles de cuisine nécessaires, ainsi qu'un lave-linge/sèche-linge, que vous pourrez utiliser moyennant supplément. La salle de bain dispose d'une baignoire-douche, d’un WC, d’une armoire à pharmacie avec miroir et d'un lavabo. Vous trouverez des espaces de rangements suffisants pour vos affaires de toilette dans les placards sous évier et au-dessus du WC. La première chambre à louer, la chambre n°1, est meublée d'un grand lit à baldaquin, d'une télévision à écran plat, et d’un placard pour ranger vos effets personnels. A côté de la fenêtre, un charmant coin salon. La chambre n°2 comprend un grand lit, un petit canapé et un téléviseur 82cm. Les deux chambres offrent un magnifique panorama sur le fleuve Hudson, en particulier au coucher du soleil ! Vous pourrez également profiter de la vue imprenable sur le célèbre pont George Washington. La chambre n°3, exposée au nord et donnant sur la voie rapide, est meublée avec un lit gigogne pour une personne (un second lit de même taille est rangé sous le premier), une télévision à écran plat, un lecteur DVD et une chaîne stéréo. En outre, il y a un mini-réfrigérateur et un four à micro-ondes. Chacune des trois chambres dispose d'un bureau, d’un espace de rangement et d’un accès à un service de câble de base. Il n’y a pas d’accès possible à la salle de séjour, à la chambre n°4, ni à la seconde salle de bain.
Cet appartement T5 situé à l’intersection de Haven Avenue et de la 176ème rue, à Washington Heights, est à un block de la station de métro sue la 175ème rue et Fort Washington Avenue, d’où vous pourrez prendre la ligne A. Haven Avenue est un quartier résidentiel, mais à deux rues de là, vous tomberez sur Broadway, une zone plus commerciale avec de nombreux restaurants ethniques qui vous serviront les meilleurs plats d’Amérique centrale que vous trouverez à New York. Dans le quartier il y a également des épiceries, des pharmacies, des bodegas et des cafés. Parmi les établissements universitaires situés à proximité, citons entre autres, l’université de la Ville de New York et l'Université de Columbia. Visitez Highbridge Park, à 9 blocks à l'ouest, où vous pourrez vous détendre dans la verdure, profitez des vues sur les rives de l'East River, et même faire du VTT ! Autre attraction, à une rue plus à l’est, visitez Fort Washington Park, qui s’étend le long de la rivière Hudson et où se trouve le Little Red Lighthouse, seul phare de Manhattan, si souvent représenté dans les livres populaires pour enfants.
Nous attirons votre attention sur le fait qu’il est interdit de fumer dans l’appartement et que les animaux n’y sont pas admis.
|
Avis de : Caroline R., 14 juil. 2017 De : Etats-Unis, Colocation de : 1 mois |
Cette personne n'aurait pas dû mettre son appartement à louer ; dans son ensemble, il n'était pas adapté à la location. Elle a effectivement pris la décision de ne plus louer cet espace où j'ai passé un mois, afin de pouvoir s'occuper de sa famille correctement. Je pense qu'elle a bien fait. Je l'appréciais beaucoup en tant que personne, mais l'endroit était une telle pagaille que c'en était même embarrassant. Quand j'y étais, l'appartement était souvent en réparation par le superviseur. Encore une fois, je n'ai rien à reprocher à la propriétaire en tant que personne, mais je suis soulagée qu'elle arrête de louer cet endroit. |
|
Réponse du : Colocataire Logeur 20 juil. 2017 |
Chère Carole, |
|
Avis de : Nadine B., 04 sept. 2015 De : France, Colocation de : 1 mois |
L appartement était très bien |
|
Réponse du : Colocataire Logeur 11 sept. 2015 |
Nadine, ce fût un tel plaisir de vous accueillir, et même si nous ne parlons pas vraiment la même langue, vous êtes toujours si gentille. |
|
Avis de : Aurélie S., 30 juil. 2015 De : France, Colocation de : 2 mois |
l'appartement se trouvant près du Washington bridge, le bruit des klaxons et de la circulation est toujours présente. quand je suis arrivé, l'appartement était remplis de débarras (pas très propre pour accueillir quelqu'un!). durant mon séjour, j'ai pu croiser une multitude d'insectes et autre petites bêtes. la locataire n'était pas à l'heure pour me rendre la caution (2h de retard... donc heureusement que je n'avait pas un avion à prendre!). sinon, la chambre est plutôt bien et grande. |
|
Avis de : Adeline M., 24 mars 2013 De : France, Colocation de : 2 mois |
J'ai vécu une expérience formidable dans cet appartement. J'aurais voulu rester un peu plus longtemps pour mieux connaître mes colocataires. Mais pour tous ceux qui cherche un endroit pour vivre un moment à New York, c'est juste parfait. |
|
Réponse du : Colocataire Logeur 25 mars 2013 |
Merci Adeline, c'était un réel plaisir de vous recevoir et nous espérons vous revoir bientôt aux Etats-Unis... |
|
Avis de : Emma B., 01 août 2012 De : France, Colocation de : 4 mois |
L'appartement en lui meme est tres bien, jolie vue, et tres bien équipé. Cependant Ana est une femme tres autoritaire, qui impose son mode de vie et sans se soucier qu'il y a 2 autres personnes dans la maison. Elle a clairement fait savoir qu'elle détestait avoir des gens chez elle, mais qu elle le faisait pour l'argent, ce qui peut se comprendre d'un côté. |
|
Réponse du : Colocataire Logeur 06 août 2012 |
Cette colocataire invitait constamment des gens à passer la nuit. La semaine avant de partir, elle avait trois amis chez elle : un depuis six jours, un autre depuis deux semaines et le troisième était là depuis trois semaines. Elle a voulu disposer de ma maison comme d'un hôtel et n'était pas contente quand je lui ai dit que j'allais la faire payer pour l'hébergement de ses amis. |
|
Réponse du : Service Client de New York 06 août 2012 |
Nous apprécions votre commentaire Emma. Nous avons obtenu confirmation du propriétaire qu'il y a un supplément journalier pour des invités et nous pouvons maintenant en informer les futurs colocataires. |