



























| date de début | date de fin | capacité | mois | information |
|---|---|---|---|---|
| 30 avril 2026 | 01 juin 2026 | 4 |
$18 304 |
information:Taxes not included. Price subject to change |
| 01 juin 2026 | 01 oct. 2026 | 4 |
$21 058 |
information:Taxes not included. Price subject to change |
| 01 oct. 2026 | 4 |
$18 469 |
information:Taxes not included. Price subject to change |
Venez jeter un œil à cet appartement d’environ 180 m² situé dans le quartier Tribeca de Manhattan, à New York.
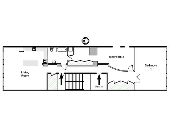
Cet appartement T3 avec une salle de bain se situe près d’Harrison Street et Staple Street, dans un immeuble avec ascenseur surveillé par un concierge. Cette location meublée dispose d’une machine à laver et d’un sèche-linge privatifs. Le séjour se compose d’un canapé, d’un espace salle à manger et bénéficie de la climatisation. Cet espace ouvert se distingue par parquet, ses lampes suspendues et ses murs en brique apparente. La cuisine est séparée du séjour par un bar autour duquel vous pouvez vous asseoir. Elle est équipée d’appareils électroménagers en acier inoxydable tels qu’un réfrigérateur, un congélateur, un four, un micro-ondes, un grille-pain et un lave-vaisselle. Il y a également une machine à café. Les deux chambres offrent chacune un lit king size et la climatisation ainsi qu’une fenêtre pour laisser entrer la lumière naturelle. Les deux pièces arborent un coin salon, dont un qui ressemble à celui du séjour ouvert.
Promenez-vous à moins de 500 mètres de cet appartement T3 pour visiter les galeries d’art locales. Faites une balade sur les chemins sinueux ou reposez-vous sur la pelouse du Washington Market Park, à 300 mètres de ce logement. Vous pouvez aussi tout simplement arpenter les rues. Silhouette unique en son genre parmi les immeubles de la skyline de Lower Manhattan à 500 mètres, la Jenga Tower est un gratte-ciel résidentiel luxueux connu pour son aspect novateur et unique. Cet immeuble présente une série d’étages en porte-à-faux qui lui donnent l’apparence d’une tour Jenga.
La station de métro Chambers Street / West Broadway donne accès aux lignes 1, 2 et 3 à 500 mètres. Vous pourrez emprunter la ligne E à la station World Trade Center / Church Street à 1 km.