
























| data d'inizio | data di fine | capacità | mese | informazione |
|---|---|---|---|---|
| 31-Dic-2025 | 1 |
$838 |
informazione:Bedroom 2. 4-5 months maximum. Utilities and household expenses not included |
Questa stanza in affitto tra la 150esima e Edgecombe Avenue nel quartiere di Hamilton Heights a Manhattan si trova nell’appartamento ideale in cui trascorrere il vostro soggiorno a New York. Uno dei quartieri più storici di Upper Manhattan, questa parte di Harlem è conosciuta per avere ospitato il quartier generale di George Washington, la Morris Jumel Mansion, a pochi isolati a nord.
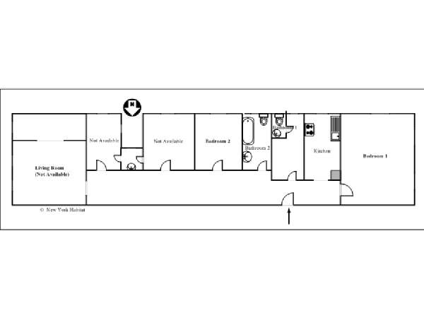
L’edificio ante guerra ha tutte le comodità necessarie per rendere piacevole la vostra visita a New York, incluso un campanello e un citofono per la vostra sicurezza. L’appartamento con 3 camere da letto si trova al terzo piano di un palazzo con ascensore di tre piani (corrispondenti a due piani in Europa) e avrete a disposizione una lavanderia. La stanza in affitto è ottima per lavorare a casa, avendo una scrivania oltre ad un letto matrimoniale. Avrete anche molto spazio per i vostri oggetti con due cassettiere e un armadio. È disponibile una connessione WiFi ad Internet.
La cucina ed il bagno con vasca e doccia sono in condivisione con gli altri inquilini di questo appartamento con 3 camere da letto. La cucina è completamente attrezzata con tutto il necessario per cucinare, come un piano cottura, un frigorifero, un forno a microonde, piatti ed utensili e presenta un tavolo da pranzo con 2 sedie. C’è inoltre un altro piccolo bagno. Vi preghiamo di notare che non avrete accesso al soggiorno.
Alcuni dei ristoranti migliori della zona si trovano ad un isolato di distanza su St. Nicholas Avenue, dove troverete anche una farmacie e un negozio di alimentari. Il Jackie Robinson Park è lungo la strada ed è il luogo ideale per trascorrere un pomeriggio all’aperto. Il parco offre diverse attività che comprendono una palestra, sale pesi e campi da basket.
L’area di Hamilton Heights è ben servita dai trasporti pubblici. Oltre agli autobus, ci sono due fermate della metropolitana ad una breve distanza dall’appartamento e la vostra stanza; la fermata delle linee A/B/C/D è tra la 245esima e St. Nicholas Avenue, mentre quella della linea 3 si trova tra la 148esima e la 7th Avenue. Le line A/B/D sono tutte express e vi porteranno a Midtown Manhattan e Brooklyn in pochissime fermate.
|
Opinione di: Rayna L., 15-Set-2017 Di: Stati Uniti, Affitto appartamento da dividere: 4 mesi |
L'appartamento di Nora è stato il posto perfetto per i miei bisogni. Il prezzo è molto basso per trovarsi a Manhattan, ed è a solio un paio di isolati dalle linee A,C,B,e D. Nora è molto carina e ben disposta ad aiutarvi quando ne avete bisogno, ma vi lascia anche il vostro spazio. Dal momento che sono arrivata durante l'estate e non c'è aria condizionata nell'appartamento, ho dovuto aprire le finestre con le zanzariere, che poteva essere più o meno rumoroso di sera a seconda di quello che facevano le persone fuori. Tornerei sicuramente da Nora se dovessi passare un lungo periodo a New York. |
|
Risposta dell': Ospitante della Stanza in Affitto 25-Set-2017 |
Rayna, grazie mille per le tue belle parole, le tue osservazioni sincere e per essere presa il tempo di aggiungerle nella recensione. È stato un piacere averti qui. Si, i rumori d'estate possono essere un problema a New York. Faccio di tutti per attutirli, ma ahimè alla fine dovrò ricorrere all'aria condizionata. La stanza può essere piacevole con le tre finestre aperte e la ventola la soffitto anche se hai dovuto ricorrere ad un ventilatore, ma sicuramente prenderò in considerazione il condizionatore. |
|
Opinione di: Marine A., 09-Ott-2016 Di: Francia, Affitto appartamento da dividere: 4 mesi |
Sono stata coinquilina di Nora per tre mesi e mezzo ed è stato un bellissimo soggiorno! Lei è molto disponibile, gentile e comprensiva. Raccomando a tutti il suo appartamento, mi sentivo a casa. Grazie Nora! |
|
Opinione di: Pia M., 03-Dic-2015 Di: Stati Uniti, Affitto appartamento da dividere: 4 mesi |
Mi sono trovata molto bene in questo appartamento. Il proprietario era molto gentile e molto disponibile ogni volta. Se avete qualche domanda o problema, non esitate a farglielo presente. Il quartiere e le strade sono molto graziosi e silenziosi e c'è un parco proprio davanti all'edificio. E' anche ben posizionato, vicino alla fermata della metro, a un negozio di alimentari e a una gastronomia. Per quanto riguarda la sicurezza, non ho mai avuto nessun problema tornando tardi a casa di notte. |
|
Opinione di: Caroline S., 05-Lug-2015 Di: Stati Uniti, Affitto appartamento da dividere: 4 mesi |
Vivere in questo appartamento è stata un'esperienza unica. Il proprietario è gentilissimo e molto educato. La stanza è comoda e accogliente, soprattutto grazie agli alberi di fronte alla finestra. Sembra di vivere in cima a un albero, con tanto di uccellini . Anche i vicini nell'edificio sono molto amichevoli e gentili. L'appartamento si trova in una posizione ottima. Ci sono 4 linee della metropolitana dietro l'angolo, a 145 Station. Consiglio assolutamente questo posto! |
|
Opinione di: Anne C., 25-Ago-2014 Di: Stati Uniti, Affitto appartamento da dividere: 2 mesi |
Il mio soggiorno è stato fantastico! L'appartamento era molto pulito, la mia stanza in affitto era comoda e la cucina era bene accessoriata, con tutto l'essenziale. Il proprietario è una persona molto piacevole e premurosa. L'appartamento è molto vicino a una stazione della metro (meno di cinque minuti a piedi), così era facile spostarsi in città. Nelle vicinanze c'erano anche un negozio di alimentari e una lavanderia automatica. Ci tornerei senz'altro e lo consiglierei a chi ne abbia bisogno. |
|
Opinione di: Alexandra H., 07-Gen-2014 Di: Stati Uniti, Affitto appartamento da dividere: 5 mesi |
La proprietaria ha arredato l'appartamento con gusto e lo tiene pulitissimo. Sia la proprietaria che il coinquilino sono persone interessanti e piacevoli. |
|
Opinione di: Amandine L., 23-Lug-2013 Affitto appartamento da dividere: 2 mesi |
Ho avuto un'ottima esperienza in questo appartamento. Il proprietario è gentile e attento e c'è tutto il necessario nelle vicinanze. Anche se stavo condividendo l'appartamento con altri, non mi è mai mancata la mia privacy. |
|
Opinione di: Helga Z., 19-Dic-2012 Di: Austria, Affitto appartamento da dividere: 1 mese |
La posizione dell'appartamento è brillante. La metropolitana è a pochi minuti di distanza e c'è un treno espresso per il centro. Arriverete anche abbastanza rapidamente a Times Square e agli altri luoghi d'interesse. C'è anche un servizio di lavanderia (aperto 24/7) nelle vicinanze (circa 200 m), dove si può lavare comodamente (lavatrice e asciugatrice). Non ho provato le lavatrici all'interno dell'edificio, non le ho trovate loro molto rassicuranti. |
|
Risposta dell': Ospitante della Stanza in Affitto 30-Gen-2013 |
Grazie per le tue gentili parole Nora, le ho apprezzate. Sono felice la stanza in affitto a casa mia è stata un buon aspetto della tua esperienza a NYC. So che non ero qui per la maggior parte del tuo soggiorno per lavoro, ma sono contenta di aver incontrato le tue esigenze e di essere ritornata in tempo per condividere un po' di vino e due chiacchiere. |
|
Opinione di: Danielle C., 18-Giu-2012 Di: Stati Uniti, Affitto appartamento da dividere: 1 mese |
L'appartamento in sé era molto spazioso e carino. Il proprietario era molto ospitale e sempre disposto a risolvere i problemi. |
|
Risposta dell': Ospitante della Stanza in Affitto 05-Lug-2012 |
La mia ospite è stata fantastica. Sono stato contento di affitarle l'appartamento facendo quello che di solito non faccio. |
|
Opinione di: Emilie A., 08-Ott-2008 Di: Francia, Affitto appartamento da dividere: 3 mesi |
L'appartamento che ho preso in affitto era molto grande e per questo confortevole. Nonostante l'ubicazione non fosse il massimo (lontano dal centro), era comunque vicino alla fermata della metropolitana. |