Menu

Colocation à New York - Appartement T3 - Park Slope (NY-15878)

Pas encore noté
Prix
$2 100 / mois
USD2100.00
Frais d'agence non compris
Besoin d'aide? Appelez-nous :
New York : +1 (212) 255-8018+1 (212) 255-8018 i de 9h00 à 18h00
heure de New York
du lundi au dimanche
samedi & dimanche : info@nyhabitat.com
Disponibilité
USD $
  • USD $
  • Euro €
  • U.K. £
  • Aust $
  • Can $
  • ¥en
  • SFranc
date de début date de fin capacité mois information
01 sept. 2026 1
$2 100
information:Bedroom 1. 1 year minimum. Internet, Heat, Laundry and dryer, Water & Electricity included.
Les prix et les dates doivent être confirmés.
Prix en Dollars US. Euros. 1 US$ = 0.858 Euro € Livres sterling. 1 US$ = 0.740 U.K. £ Dollars australiens. 1 US$ = 1.394 Aust $ Dollars canadiens. 1 US$ = 1.381 Can $ Yen. 1 US$ = 158.928 ¥en Francs suisses. 1 US$ = 0.781 SFranc
Description
Appartement T3 - Park Slope (NY-15878)
T3, 1 Salle de bain - Capacité 1

Si vous souhaitez vivre comme un vrai new-yorkais dans l'un des quartiers les plus en vogue de Brooklyn, alors cet appartement T3 en triplex de Park Slope est peut-être fait pour vous !

Celui-ci est situé sur la 14ème rue et 5ème avenue, et aménagé dans une maison de ville de trois étages (l'équivalent de 2 étages en France) d'avant-guerre sans ascenseur. Vous pourrez également profiter de son jardin pour vous détendre en toute tranquillité !

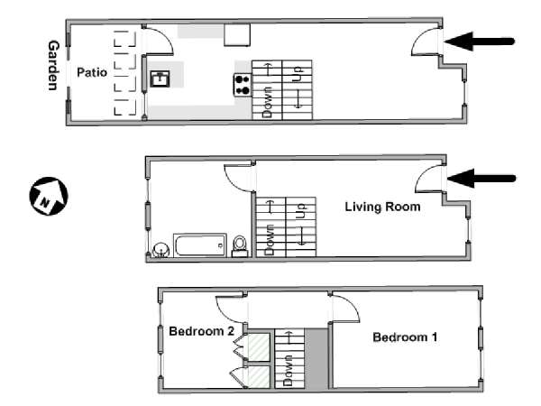
Cet appartement T3 moderne est agencé comme suit : une entrée mène de la rue au 1er étage, qui comporte un salon et une salle de bains. Une autre entrée donne également accès à un débarras au rez-de-chaussée, qui comprend aussi une cuisine et l'accès au jardin. Les deux chambres se trouvent au 2ème étage (attention : vous disposerez d'un espace de rangement limité dans la commode de la chambre 1 et n'aurez accès qu'à l'armoire de la chambre 2).

La décoration de style bohème de l'appartement est à la fois moderne et décontractée. Vous y trouverez des éléments de décoration variés : bougies, cadres, bibelots... À l'exception de la salle de bains, tout l'appartement est doté de parquet.

Ses points forts sont la cheminée décorative, les appareils ménagers en inox et le patio intérieur/salle à manger. Cette pièce, baignée de soleil grâce à son puits de lumière, comprend des murs en briques apparentes, une porte-fenêtre donnant sur le jardin et une table ronde pour 4 personnes.

Veuillez noter que la propríétaire de cet appartement a deux chats qui resteront dans l'appartement pendant la période de location, et que les locataires devront nourrir. La propriétaire fournira la nourriture.

Impossible de s'ennuyer à Park Slope ! Le quartier ne présente que des avantages : zone résidentielle le jour et lieu de sortie branché la nuit, tout cela à seulement 6 stations de métro du sud de Manhattan ! À voir et faire dans le quartier:

- Jardin botanique de Brooklyn : un magnifique jardin botanique de 21 hectares, situé au cœur de Brooklyn. 3,3 km. Accessible en métro.

- Prospect Park : un immense parc très prisé de Brooklyn, où vous trouverez de nombreuses activités. 1 km. Accessible à pied.

- Applewood : un restaurant de cuisine américaine réputé. 850 m. Accessible à pied. Vous trouverez également bien d'autres options sur la 5ème avenue. Faites votre choix !

- Les commodités essentielles se trouvent à seulement 50 m de l'appartement, sur la 4ème avenue et 14ème rue (laverie, banque et autres magasins).

Pour accéder à Manhattan et vous déplacer dans Brooklyn (du nord au sud) et le reste de New York :

- Prospect avenue et 4ème avenue : la station de métro la plus proche, desservie par la ligne R. 500 m

- 4ème avenue et 9ème rue : la station n'est qu'à quelques blocks plus loin et donne accès aux lignes F, G et R. 600 m.

Équipements :
  • Climatisation,
  • TV,
  • Cheminée,
  • Internet,
  • Animaux non autorisés,
  • Fumeurs non admis,
  • Pas d'ascenseur
Situation
Plan : New York Colocation - 14th Street et 5th Avenue Brooklyn, NY 11215
métro i Ces plans/itinéraires sont présentés pour information seulement. Aucune affirmation ni aucune garantie n'est donnée quant à leur contenu, l'état des routes ou la praticabilité des itinéraires. L'utilisateur accepte tout risque lié à l'utilisation des données diffusées. Google Maps, New York Habitat et leurs fournisseurs ne pourront être tenus responsables de tout retard ou perte résultant de cette utilisation.
  • Ligne R. Station Prospect Avenue / 4 Avenue
  • Lignes F, R, G. Station 4 Avenue / 9 Street
Pièces
  • séjour
  • cuisine
  • chambres
  • salle de bain
  • autre
  • plan schématique
Séjour
Caractéristiques : Fenêtre, TV, Canapé
Cuisine (Séparée)
Caractéristiques : Indépendante, Réfrigérateur, Four, Congélateur, Cafetière, Grille-pain
Chambre # 1
Caractéristiques : Climatisation, Fenêtre
Nb de lits : 1
Taille du lit : lit (queen)
Chambre # 2
Caractéristiques : Climatisation, Fenêtre
Nb de lits : 1
Taille du lit : lit (double)
Salle de bain
Caractéristiques : Fenêtre, Douche, WC, Baignoire, Serviettes

Les plans dessinés sur ce site ne sont pas réalisés à l'échelle. Ils sont fournis à titre indicatif et ont pour seul but de donner une idée de la disposition d'ensemble. Les éléments qui y figurent ne pourront être considérés comme un plan exact, un exposé des faits ou quelconque garantie.

Évaluations & Avis Clients
Appartement T3 - Park Slope (NY-15878)
Pas encore d’avis client ni d’évaluation de l’appartement

À propos des cookies

Ce site Web utilise des cookies internes et des cookies tiers pour vous offrir la meilleure expérience utilisateur possible. Pour profiter de toutes les fonctionnalités du site, veuillez accepter ces cookies. Veuillez noter que si vous refusez, certaines fonctionnalités du site Web peuvent ne pas fonctionner pleinement (par exemple les vidéos, les cartes, le chat).

J'accepte Je refuse
Chat