


































| start date | end date | sleeps | day | week | information |
|---|---|---|---|---|---|
| No availability at this time | |||||
This is a bed & breakfast accommodation in the Prospect Lefferts Gardens area of Brooklyn – great for travelers wishing to experience New York with the comfort of native companions! Boasting 4 bedrooms (one suite-style) on three floors of the apartment, it offers a private room in a residential New York City neighborhood.
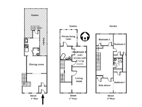
Located on Rutland Road, off of Flatbush Avenue, this 4-bedroom bed & breakfast triplex apartment sits on the 1st, 2nd and 3rd floors (considered ground – 2nd in Europe) of a classic prewar 3-story walk-up townhouse. A shared garden with BBQ grill is available. Please Note: This accommodation is sometimes rented out in its entirity to a single party as a vacation rental, in which case no breakfast is served and full use of the kitchen is available, and at other times as a B&B with the individual bedrooms being rented to different parties and a continental breakfast being served instead of allowing kitchen access.
Four private bedrooms scatter the 3-story b&b, as well as a shared dining room, living room and kitchen. Bedroom 4 is furnished as a suite with its own private living room and bathroom. This suite is located on the 2nd floor, all other bedrooms are on the 3rd floor.
Featuring beautiful prewar qualities such as parquet floors, high ceilings and decorative fireplaces, this Brooklyn home-away-from home offers a charming, old-world environment with modern amenities. Each basic bedroom presents an antique atmosphere with long windows, minimal décor and hanging chandeliers (except bedroom 2). Bedrooms 1 and 2 provide a queen bed and double sofa bed. Bedroom 3 includes a twin bed.
Bedroom 4 is the largest of the four, spanning approximately 340sqft (31.5sqm) and including its own living room and private en-suite bathroom. This private space offers a king-sized bed and a sofa. French doors open to the private bathroom with its own tub and toilet.
The shared living room (living room 1) is located on the 2nd floor and is accessorized with a modern area rug, antique-style sofa and two expansive windows, allowing midday sun to illuminate the space. The dining area (living room 2) is on the 1st floor next to the kitchen, showcasing dark wood molding on the walls and ceiling and a wooden dining table for six. Only the microwave and fridge is available for use in the shared kitchen during B&B rentals.
Continental breakfast will be served Monday through Friday for B&B guests.
Neighboring the world-famous Prospect Park, this 4-bedroom bed & breakfast in Prospect Lefferts Gardens, Brooklyn offers an authentic perspective of life in the city. Walking distance from all basic needs facilities (including pharmacies and Laundromats) the home is just 4 stops away from Manhattan on the B train. However, travel into the heart of the Big Apple isn’t necessary – there are plenty of nightlife options, bars, shops and tourist attractions surrounding this b&b. Listed below are some suggestions of where to go in the neighborhood.
Prospect Park Zoo: Looking for some family-friendly fun? Discover the many animals presented at this intimate and enjoyable zoo, located within Prospect Park. 0.6mi/1km. Accessible via foot.
Lincoln Park Tavern: For a night of drinking close to home come to this quaint neighborhood spot serving American cuisine and a full bar. 0.3mi/450m. Accessible via foot.
For easy public transportation around the NYC boroughs, consider walking to these nearby subways:
Prospect Park / Empire Boulevard / Flatbush Avenue: Serving lines B. Q. S. 0.3mi/550m.
Winthrop Street / Nostrand Avenue: Serving line 2, 5. 0.6mi/1km.