












| start date | end date | sleeps | month | information |
|---|---|---|---|---|
| May 20 2027 | open | 2 |
$13,565 |
information:1-6 months. + Taxes - Rates are subject to change. Utilities are not included. |
| 2 |
$9,773 |
information:6-month and over. Rates are subject to change. Utilities are not included. |
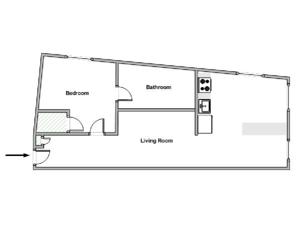
Explore the West Village from this contemporary one-bedroom furnished apartment in New York City. This apartment is on the 6th floor (same as the 5th floor in Europe) of an elevator building on Downing Street and 6th Avenue. The building has a doorman, laundry facilities, a gym, and a garden.
Light walls and hardwood flooring create an inviting atmosphere in this 620 square foot (around 58 m2) furnished rental. The kitchen is equipped with stainless steel appliances including an oven, fridge, dishwasher, microwave, toaster, and Nespresso machine. It opens onto a dining alcove and the living room, furnished with a sofa and wooden accent pieces. In the bedroom, you will find a queen-size bed and a closet. The bathroom comes with all the essentials, as well as an iron and a hairdryer. This apartment rental includes a flat-screen TV, speakers, a Google Home, and air conditioning.
Greenwich Village is a vibrant neighborhood in Lower Manhattan, known for its restaurants, bars, and proximity to Washington Square Park. From this apartment, the park is 0.3 miles (around 0.5 km) away, as are many dining and shopping options. You can also catch a comedy show or play basketball on West Fourth Street, 0.2 miles (around 0.3 km) away.
For subway service, Houston Street Station is 0.2 miles (around 0.3 km) away and serves the 1 line. You are also located near the B, D, F, M line and the A, C, E line at West 4th Station.