




























| start date | end date | sleeps | month | information |
|---|---|---|---|---|
| No availability at this time | ||||
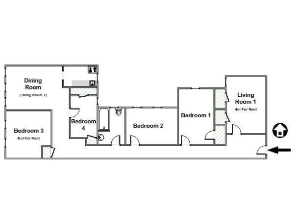
This room for rent is in a shared 4-bedroom apartment located in Washington Heights. Named for George Washington, this neighborhood is abuzz with bachata and reggaeton beats and boasts of a rich history. The building dates from the 1920s and is a 6-story walk-up (equivalent to a 5-story European building) which features a buzzer/intercom in its entryway. Located on the 3rd floor (considered 2nd by Europeans), the apartment is 1200 square feet and is lined with hardwood floors.
This apartment features several rooms for rent. Available room for rent, Bedroom 1 is simply and modestly furnished, but includes all the essentials: a queen sized bed, a desk for when you have work to do at home, and a television with cable access for relaxing. There is a long dresser to store your things, as well as a closet for hanging clothes. Additionally, there is a small refrigerator, allowing you to store snacks in your room if you prefer not to use the kitchen. A window with northern exposure allows in natural light. Bedroom 2 features a double-sized bed while bedroom 3 features a single-sized bed. Both rooms offer a television and closets for storage space. The bathroom is shared with the roommates, as is the kitchen and dining room. The living room is not available for use.
This apartment is situated on the corner of West 183rd Street and Saint Nicholas Avenue, a vibrant street lined with casual restaurants, cafes and stores; there are many fresh produce markets as well, particularly on St. Nicholas Avenue. Enjoy Latin-inspired seafood at the acclaimed Marisco Centro or have some mofongo at the popular La Casa Del Mofongo. To further relish in the experience of living in this neighborhood, why not catch the broadway show “In the Heights”? Please note that there is a Tapas Bar below the apartment open until 4am so there can be some noise.
You are just two blocks from the subway, serving line 1, as well as two blocks away from the Yeshiva University and High Bridge Park, which run all along the Harlem River, perfect for relaxing. Within a three-block radius from the apartment you can also find J’s Big Gym and the Fort Washington Public Library. With the subway, you can reach The City College of New York in 4 stops or Columbia University in 6 stops. Go a station further and you’re already in the Upper West Side of Manhattan, with Central Park only 4 blocks away!
|
Review by: John A., Sep 09 2020 From: United States, Apartment Share Rental: 6 months |
The owner is very involved which can be a good or bad thing depends on how private the person is. |
|
Review by: Mallet N., Aug 16 2017 From: United States, Apartment Share Rental: 3 months |
The overall apartment experience is a mixed bag. Some of the positives: the host is very nice and welcoming, and the apartment itself is quite clean. I'd give it 5 stars, but I saw a roach once or twice scurrying around the bedroom (that said, I hear that roaches are a fact of life in NYC so take that with a grain of salt). In fact, it almost seemed like the bathroom was getting professionally cleaned every day. The apartment is located within 5 minutes of the 1 train and the A train (if heading downtown, I recommend the A train just because in my experience through the summer it is more reliable). The bedroom itself is big and comes with all the basic necessities. The host does everything to make you feel at home. The building itself leaves a lot to be desired. The elevator smells bad and so you may find yourself taking the stairs instead. However, the stairs, in my experience, are filthy and littered with cigarettes and other refuse. When I showed up late at night from work, I'd have to maneuver around other apartment residents smoking in the stairwells. The noise from the tapas bar downstairs was a drawback. I didn't realize it would be every night - be sure to get decent earplugs. |
|
Answer by: Roommate Host Sep 07 2017 |
The apartment is very clean but roommates tend to eat and drink in their room and leave garbage which attracts roaches. It is not my fault if the building is not so clean and it's run down. I am a tenant and I have no control over the building condition. I make sure that the apartment is very clean. Roommates should eat in the kitchen or dining area and stop using their room for dining and leaving garbage. |
|
Review by: Lavinia H., Aug 01 2017 From: Germany, Apartment Share Rental: 3 months |
The landlord is a very kind person. |
|
Answer by: New York Customer Service Aug 18 2017 |
Hi Lavinia, thank you for your honest review! Indeed the as advertised on our website it is a four bedroom apartment and the other rooms can be occupied by other people. We made a good note of your comment about the noise coming from the bar tapas and edited the description of the apartment to reflect that fact. We hope you enjoyed New York and will be back soon! |
|
Review by: Aurélie S., Oct 30 2015 From: France, Apartment Share Rental: 2 months |
On the whole, this apartment share is nice. The main issue is that the landlady forbids access to the kitchen after 8 pm. |
|
Answer by: Roommate Host Nov 09 2015 |
Thank you for your review, Aurélie. I prefer that my roommates do not cook after 8 p.m. because I go to bed early and the smell gives me a headache. Of course, if once in awhile you come home late, I will be fine with you cooking after 8 p.m. Thank you again, Aurélie. Zoila. |
|
Review by: Emilio S., Sep 28 2015 From: Italy, Apartment Share Rental: 12 months |
Zoila Perez is a wonderful landlady. She often offers me food and she has taken care of me as if I was her son. The apartment is very clean and the roommate a nice person with whom I could share many thoughts and meals. Even though the neighborhood is not the cleaniest or quietest it is provided with all the markets, grocerys, laundrys and facilities that are necessary. |
|
Answer by: Roommate Host Sep 30 2015 |
Dear guest thank you for your positive feedback, it is our goal to improve your guest experience; your feedback is appreciated. |
|
Review by: Lara K., Jan 02 2014 From: Germany, Apartment Share Rental: 5 months |
The best thing about this apartment are the roommates. They are very friendly and helpful people, and took great care of me when I had a problem. At the same time they always respected my independence and privacy. |
|
Answer by: Roommate Host Jan 05 2014 |
Thank you for the positive feedback. We appreciate and utilize it to focus on providing an overall hospitable, and comfortable experience. |
|
Review by: Daniel C., Aug 06 2013 From: United States, Apartment Share Rental: 2 months |
This was a very nice apartment to live in for the summer. The owners are extremely nice and are willing to assist you with anything you need. Cable and internet are included, with air conditioning only an extra $20 a month. |
|
Review by: Marie-sophie L., Feb 22 2013 From: France, Apartment Share Rental: 1 month |
The couple who rent the apartment is really nice. They are always there for you if you need anything and really want you to feel comfortable. I really have nothing to say about them or the room which is big and furnished with a TV, a fridge and the Wifi so very convenient. The inside of the apartment is very quiet. |
|
Answer by: Roommate Host Mar 11 2013 |
Thank you kindly for taking the time to provide us with feedback on your experience. It is highly valued and a source of continued motivation for improving on our hospitality and providing an overall comfortable experience. |
|
Review by: Nicolas C., Jan 24 2013 From: United States, Apartment Share Rental: 1 month |
It was fine. The neighborhood wasn't really my forte. |
|
Answer by: Roommate Host Mar 04 2013 |
Thank you kindly for your review, Nicolas. It is our goal to continuously provide you a hospitable, safe and comfortable experience, all of which we take great pride in having successfully provided. |
|
Review by: Dragica P., Jan 09 2013 From: Germany, Apartment Share Rental: 1 month |
A very nice family who rents the apartment out. It is very close to a subway station. |
|
Review by: Federico D., Dec 28 2012 From: Italy, Apartment Share Rental: 1 month |
Everything is ok. |
|
Review by: Matthew V., Jun 04 2012 From: United States, Apartment Share Rental: 1 month |
Overall the room is very nice and comes with a TV and mini-fridge. |
|
Answer by: Roommate Host Jul 20 2012 |
Thank you kindly for the feedback. It is our goal to provide guests with excellent comfort quality with in our reach and unmatched hospitality. To that end, we have added air conditioning and internet service. |