





























| start date | end date | sleeps | month | information |
|---|---|---|---|---|
| No availability at this time | ||||
These rooms for rent are located in a 3-bedroom apartment share in the New York borough of the Bronx, right next to the New York Botanical Gardens and the Bronx Zoo. The apartment is situated on the 4th floor (considered 3rd by Europeans) of a 5-story building from the early 20th century, with an elevator for easy access and a video intercom at the entrance.
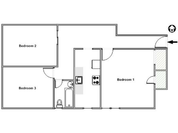
The first room for rent (Bedroom 1) faces south, and is entirely furnished and lined with hardwood floors. A double bed invites you to settle in and offers the option of relaxing in front of the flat screen cable TV stationed atop a bureau. Bedroom 2 faces west and also has a double bed and a television with cable access. There is a dresser for storing your belongings. There are two windows to allow natural light to illuminate the space. The last bedroom is Bedroom 3, which is situated next to the shared bathroom and benefits from double exposure with two windows. There is a double bed, a closet, a desk and a wall-mounted television. The living room is not available for use. There is also a separate kitchen shared between the occupants, with the basic appliances available for cooking at home. The living area in the hallway features a few chairs for socializing.
This three bedroom apartment share is located in the heart of the northern Bronx area, where you will find yourself in a vibrant residential area with many stores and restaurants within reach. For instance you may want to try some Spanish dishes at Colonial Restaurant 3 blocks down. Otherwise take a short bus ride from Pelham Parkway South (1 block) to the Fordham Road shopping district for a wide variety of shops and dining options in the biggest shopping destination in the Bronx. What makes it even more convenient is that one of the best restaurants around, Parrilla Latina Restaurant, is right on the bus stop. You will also find yourself within 5 blocks of the Bronx Park, home of the Bronx Zoo, the biggest in New York, with over 600 species. The other landmark in the area is the New York Botanical Gardens, with regular major exhibitions throughout the year. The neighborhood is also home to various schools and notably Fordham University on the other side of the park. And to make your stay even better, one of the best beaches in New York is accessible via bus to Orchard Bay, for a massive sand beach and great view of the horizon.
The subway is only one block south to Pelham Parkway, from where you will able to ride the 2/5 lines. They will take you down to Manhattan, the 2 along the west side and the 5 along the east side, or further north into the Bronx.