

















| start date | end date | sleeps | month | information |
|---|---|---|---|---|
| Mar 13 2026 | open | 1 |
$1,100 |
information:Bedroom 1: Utilities $50/month. $50 for cable, WiFi + washer and dryer |
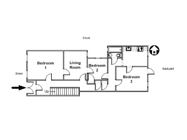
Dive into the vibrant neighborhood of Flatbush, Brooklyn with these rooms for rent in a three bedroom apartment! Located at East 29th Street & Farragut Road, this fully furnished rental can be found on the 1st floor (European ground floor) of a townhouse with western exposure of the street and eastern exposure of the backyard.
Please note that these are rooms for rent in a shared apartment. While the first bedroom is your exclusive space, the kitchen and living room are shared with your roommate. Other common areas, such as the other bedrooms, are not available during your stay.
This New York apartment is furnished with modern décor in a space that has abundant natural light and beautiful hardwood flooring. The first and third bedrooms feature a full sized bed and the second bedroom offers a twin sized bed and a TV with cable. You will find a sofa and two armchairs in the light and bright shared living area. The updated kitchen is a dream for anyone looking to make meals at home since it is equipped with an oven, fridge and a dining table.
Flatbush is a largely residential neighborhood of Brooklyn, but does not lack modern amenities! Dine as the locals do and taste the flavors this neighborhood has to offer at the many eateries available including Footprints Café (0.2mi/322m), a vegetarian Caribbean restaurant, or Orin & Camila Roti Shop (0.3mi/482m), which offers Mediterranean eats. If you are one who enjoys going out on the town, check out Sip & Chat Cocktail Lounge (0.3mi/482m), where you can get specialty drinks! This area is great for college students since Brooklyn College (0.5mi/805m) is just a short walk away! The Kings Theatre (1 mi/1.6 km) is a lavish movie palace-type theater with a small mezzanine, allowing the entire elegant design to be viewed from anywhere in the auditorium. It has a sweeping staircase in the lobby that leads to the mezzanine. The theater was added to the U.S. National Register of Historic Places in 2012.
There is public subway service at Newkirk Avenue/ East 16 Street (B/Q trains, 1mi/1.6km) and Newkirk Avenue/ Nostrand Avenue (2/5 trains, 0.2mi/322m).
|
Review by: Elisabetta L., Dec 11 2015 From: United States, Apartment Share Rental: 3 months |
The apartment is completely new, very nice and clean.I had really great time because it is close to many shops and it is really five minutes walk to the subway.I had a good feeling with the landlady, she is respectful and very kind. |