


















| start date | end date | sleeps | month | information |
|---|---|---|---|---|
| No availability at this time | ||||
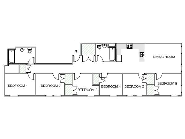
This shared apartment, located on Tompkins Avenue between Hart Street and Willoughby Avenue, holds six private bedrooms and two shared bathrooms. As you enter, you will find a fully-furnished modern living room, including a sofa and two medium-sized windows! The kitchen holds a beautiful contrast of a brown countertop, white cabinets, and a black backsplash. The kitchen is equipped with a freezer, microwave, fridge and oven to your convenience! Each of the fully furnished six bedrooms hold a modern style as well, and they include full-sized beds. Five bedrooms have one window, each are different sizes, and one bedroom holds two windows, all for a great view of Bedford-Stuyvesant and the rest of Brooklyn! The two bathrooms are shared, and they hold an aesthetic contrast of black and white. The white-tiled bathrooms include a wash closet, a shower and tub, and towels!
The area of Bedford-Stuyvesant is well known for its cultural diversity, especially for being the most populous county in Brooklyn, New York! Here you will find rustic brownstones, dog parks, lush gardens, jazz, and the farm-to-fork Baron’s Oyster Bar just four blocks down Tompkin’s Avenue!
Along Tompkins Avenue, there are various restaurants to dine from, such as Rocco’s Pizza, Brooklyn’s Finest Deli, BKYN Blend, and more! Another convenience for living in this area is the subway accessibility on Myrtle Avenue/ Broadway and Myrtle-Willoughby Avenues/ Marcy Avenue.