




























| start date | end date | sleeps | month | information |
|---|---|---|---|---|
| Jun 30 2026 | open | 3 |
$3,400 |
information:MAY EXTEND Gas & electric incl up to $100/mo-WiFi incl-$100 cleaning < 2 months New York Furnished Rental Deals * |
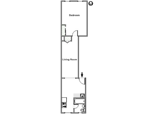
This 600 sq. ft. one bedroom is located on the 4th floor (know as the 3rd floor for Europeans) of a prewar building on the Lower East Side of Manhattan. The apartment was renovated and there are hardwood floors throughout. There is a full intercom and security system in place.
The living room is fully furnished and decorated in a contemporary style. There is a comfortable seating area and an irregular sized double futon bed, measuring approximately 75 x 43 (slightly narrower than regular double futon beds). There is a dining table and chairs for four persons. The entertainment center houses a TV. Complimentary wireless Internet access is also available. There is an air conditioning unit to cool the space during the summer. The bedroom is also furnished in a contemporary style with a dresser and closet and double size bed. There are two large windows. The separate kitchen has a window and is adjacent to the living room. The kitchen comes with a microwave, coffeemaker, and toaster, new gas stove and full sized refrigerator. The kitchen comes equipped with all pots, pans and utensils to prepare food.
This apartment is located on East Houston Street on the the Lower East Side of Manhattan, New York. This area features a wide variety of restaurants, bars and clubs, allowing you to enjoy your evening any way you desire. Katz's Delicatessan is just three blocks west, where you can enjoy the country's most famed pastrami sandwiches. For fine dining, try WD-50, less than 2 blocks south, where chef Wylie Dufresne puts forth some of the most cutting-edge cooking in New York City. The Hamilton Fish Park, Tompkins Square Park and the East River Park are all located withing 6 blocks of this apartment, giving a convenient place to relax or go running or biking.
Please note that you may experience some noise during your stay as a result of a roadway modernization of East Houston Street. The first phase of the project, on Houston Street from Bowery to West streets, is complete and has added much to both the aesthetics and functionality of the neighborhood.
|
Review by: A Renter, Jun 12 2024 From: Canada, Apartment Rental: 10 months |
Location was prime for my studies in Manhattan and transiting. The building was clean, the superiors were responsive, and the neighbours were kind. All concerns were quickly addressed. |
|
Review by: A Renter, Jul 23 2023 From: United States, Apartment Rental: 3 months |
Great spot in awesome location on the border of the East Village and LES. Apartment was shockingly quiet given it's directly on East Houston. Close to 2nd Ave station and so many good restaurants and bars. Landlord attentive when needed. All around great sublet for 10 weeks. |
|
Review by: Hannah M., Aug 08 2022 From: United States, Apartment Rental: 8 months |
Apartment was absolutely immaculate when I moved in, the cleanest place I have ever moved into- hands down. Really great location, as well. |
|
Review by: Alais M., Oct 03 2021 From: United States, Apartment Rental: 2 months |
This apartment was perfect for us and the owner was a great landlord! He was super attentive and responsive when we had any questions. The apartment was even better than the pictures showed and the location truly can't be beaten! I would highly recommend this property. |
|
Review by: Gregory H., Dec 21 2020 From: United States, Apartment Rental: 2 months |
Excellent location, right next to three grocery stores (Key Foods, Trader Joe's, Whole Foods), steps away from several bars and restaurants which would have been great if it hadn't been for the pandemic, and close to three subway stations with easy access to D,F,M,J,Z, and 6 trains. Apartment was clean with giant bed, brand new gas stove and oven, coffee maker and complimentary cable and wi-fi. Property manager was great guy and easy to work with. It's not required, but my particular landlord preferred if you paid with Zelle, so just try to have that set up beforehand. After that everything ran smoothly. Only drawback to the neighborhood is that the homeless/mentally ill population is growing extremely aggressive and are not afraid to scream at you and get in your face while you walk to the subway. There is only so much you can give and when you have to ignore them it only gets worse. Other than that it's probably the best apartment I've ever stayed in. |
|
Answer by: Apartment Owner Mar 17 2021 |
Dear Gregory, |
|
Review by: A Renter, Oct 15 2013 Apartment Rental: 1 month |
We had a great time and enjoyed our stay in the apartment. The apartment was clean, comfortable, had lots of space, and the wireless internet worked perfectly. |
|
Review by: Gerbrich Oreel &., Mar 11 2008 From: Netherlands, Apartment Rental: 2 months |
The apartment in New York Lower East Side met our expectations and was reasonable value for money. Arrangements (money transfer etc.) with the owner were also ok. |
|
Review by: Gerbrich Oreel &., Mar 11 2008 From: Netherlands, Apartment Rental: 2 months |
We've enjoyed our stay in New York and in the apartment very much. It was clean and comfortable and in a very nice area. The contact we've had with the owner of the apartment, was very nice as well. |