




















| start date | end date | sleeps | month | information |
|---|---|---|---|---|
| No availability at this time | ||||
This one bedroom, fully furnished apartment is on the ground floor of a walk-up brownstone from the early 20th century, located in the upper part of Manhattan, New York in Hamilton Heights. The entrance is secured with an intercom / buzzer system. You will have access to a lovely private garden with an abundance of plants and beautiful flowers.
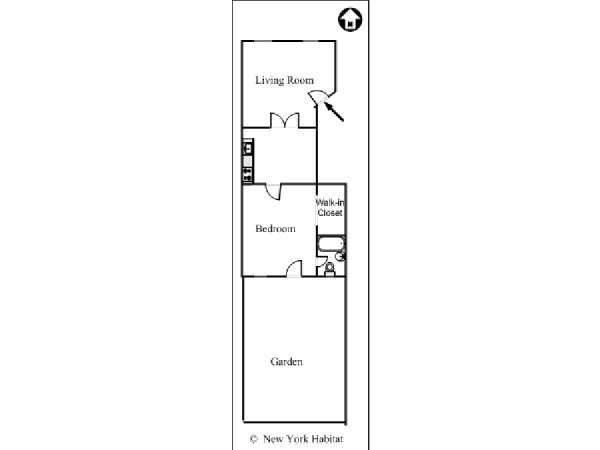
The apartment has a comfortable layout that consists of a living room, bedroom, kitchen and bathroom. The main entrance into the unit is through the living room, which is furnished with a queen-size sofa bed and a flat-screen TV. This room has an eclectic mix of old and new—the modern furniture contrasts nicely with the classic decorative fireplace, hardwood floors, and wall moldings. It is a bright space as there are two windows, with northern exposure, overlooking the street. From the living area, you enter the separate kitchen through French doors, which can be left open for an easier flow. The kitchen is equipped with the basic appliances you’ll need to prepare meals and a glass dining table with a wrought iron base that seats two. This room opens into the bedroom, furnished with a queen-size bed, floor lamps, and a small dresser. It has a walk-in closet closet and a window, with southern exposure, that overlooks the garden. There is an en-suite bathroom that is equipped with a bathtub / shower, washbasin, and WC, and features ample shelf space for towels and toiletries. The garden, accessed from the bedroom, has a small terrace with a table and chairs, making it a nice place to enjoy outdoor dining when there is pleasant weather.
Located on West 142nd Street & Broadway in Manhattan, this Harlem apartment is conveniently situated in the neighborhood of Hamilton Heights. The one bedroom unit is surrounded by parks, including St. Nicholas Park, Jackie Robinson Park and Riverside Park on the Hudson River. There are many restaurants and delis around the block, both on Broadway and Amsterdam Avenue. Grab a bite at La Codesa (2 blocks), a tasty Mexican eatery, and do some shopping at the various nearby shops. The area is also well suited for students as the City College of New York is only 2 blocks away and Columbia University is in the adjacent neighborhood of Morningside Heights.
If you want to see the rest of NYC, head to the closest subway stations, West 145 Street / Broadway (3 blocks) and 137 Street / Broadway : City College (4 blocks); both run on the 1 line, which is ideal for commutes to Downtown Manhattan and the Bronx.