











| start date | end date | sleeps | month | information |
|---|---|---|---|---|
| No availability at this time | ||||
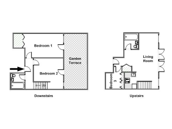
This is a model apartment. It reflects both the quality and the style of the apartments we offer at this location. The individual apartments are a variation of this one with some differences in layout and exposure.
This fully furnished three bedroom duplex apartment is located on the Upper East Side of Manhattan, New York. The apartment is on the ground and 2nd floors of a turn of the century low-rise building with a buzzer/intercom system for guest entry. There is an elevator in the building, but stairs in the apartment. Enjoy the outdoors with your own private garden terrace!
This apartment features hardwood floors, combined with contemporary décor with clean lines. The kitchen is fully equipped with a microwave, toaster and coffee maker in addition to all the basic amenities. Internet and basic cable access are available.
This furnished three bedroom apartment is located on East 82nd Street, on the Upper East Side of Manhattan, New York. Central Park is within walking distance, just over 6 blocks away. The Whitney Museum (5 blocks) and the Metropolitan Museum of Art (6 blocks) are both also nearby, giving plenty of cultural opportunities. The streets of this area are lined with restaurants and boutiques. There is the convenience of a CVS pharmacy and a Morton Williams’ supermarket just around the corner on 3rd Avenue.
The nearest subway station serves the 4/6 lines, located a little over 5 blocks away, making the New York City commute easier.