






















| start date | end date | sleeps | month | information |
|---|---|---|---|---|
| Mar 15 2026 | open | 4 |
$5,700 |
information:3 month min. Electric & gas included up to $100/mo. Cable & Internet included. $500 cleaning fee. |
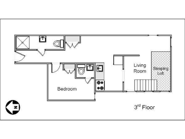
This fully furnished 1-bedroom apartment is located in the East Village of Manhattan, New York. The apartment is on the 3rd floor of a 3-story brownstone building with an elevator. There is also the luxury of a gym shared amongst the buildings' tenants, as well as on-site laundry facilities.
The living room is furnished with two sofas and a mounted flat screen television. To the side of the living room is a small staircase that leads up to the lofted space above the living room with a queen size mattress. There is a dining area between the living room and the kitchen, situated in an alcove. The bedroom contains a queen-size bed and there are 1.5 bathrooms in this apartment.
The windows of this apartment have eastern and northern exposure, looking onto neighboring buildings and allowing in natural light.
Please note: The sleeping loft has limited privacy, as it is open and located directly above the living room.
This furnished rental is located on East 12th Street in the East Village, a neighborhood in Lower Manhattan. Around the corner on 3rd Avenue, you will find a variety of cafes, bars and restaurants. Enjoy Momofuku Ssam Bar, less than a block away, serving acclaimed food and cocktails from menu that changes daily. Both Union Square and Tompkins Square Park are about a 5 block walk away, offering green markets and a space to relax in the middle of New York City.
Public transportation is particularly convenient with the L subway station just two blocks north and the 4/6 lines at Astor Place station about four blocks away.