






























| start date | end date | sleeps | month | information |
|---|---|---|---|---|
| Apr 06 2026 | May 31 2026 | 7 |
$20,097 |
information:Taxes not included. Price subject to change |
| Jul 01 2026 | Aug 15 2026 | 7 |
$24,798 |
information:Taxes not included. Price subject to change |
| Sep 15 2026 | open | 7 |
$24,725 |
information:Taxes not included. Price subject to change |
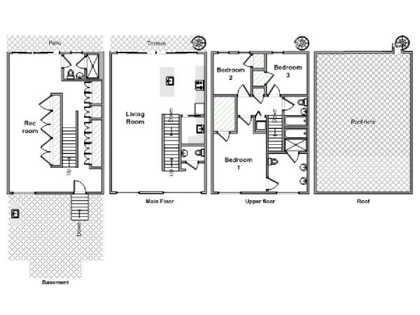
Here is a 3-bedroom, 3.5-bathroom furnished apartment in New York’s Williamsburg neighborhood.
This 2,500-square-foot (around 232 m2) Brooklyn furnished rental–a triplex found on three floors of a townhouse–is located near the corner of Frost Street and Union Avenue, and includes two living rooms, a kitchen, in-unit laundry, an exercise room, and access to a patio and terrace. The first living room features a sofa, dining area, windows which look on the back, and air conditioning. The second living room comes with a sofa that can be made into a single-size bed, a television, and air conditioning. With an island in the center, the open kitchen provides a refrigerator, freezer, oven, microwave, dishwasher, toaster, and coffee machine.
The first bedroom boasts a queen-size bed and walk-in closet space. The second and third bedrooms both have a double-size bed and a desk area. The first and third bathrooms both include a shower with a built-in bathtub, but the first shower has marble shower walls. This first bathroom is an en-suite for the first bedroom. The second bathroom has a shower. The fourth bathroom is a water closet. The first three bathrooms provide under sink storage.
McCarren Park is a large green space 0.1 miles (around 150 meters) from the apartment that has multiple sports facilities. The Brooklyn Bowl is a live music venue meets at a bowling alley 0.5 miles (around 800 meters) away that showcases a variety of acts. The City Reliquary Museum is a hidden gem museum 0.4 miles (around 650 meters) from the rental that displays objects and exhibits from New York’s lengthy history.
The Lorimer Street, Metropolitan Avenue, and Grand Street subway station is 0.3 miles (around 500 meters) from the apartment and runs the G and L lines. Another subway option is the Bedford Avenue and North 7th Street station, which is 0.4 miles (around 650 meters) away and also runs the L line.