















































| start date | end date | sleeps | month | information |
|---|---|---|---|---|
| Jan 29 2026 | Apr 01 2026 | 7 |
$41,145 |
information:Taxes not included. Price subject to change |
| Apr 01 2026 | Jun 01 2026 | 7 |
$42,101 |
information:Taxes not included. Price subject to change |
| Jun 01 2026 | Oct 01 2026 | 7 |
$42,101 |
information:Taxes not included. Price subject to change |
| Oct 01 2026 | open | 7 |
$42,101 |
information:Taxes not included. Price subject to change |
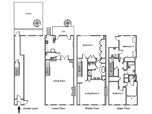
Here is a grand, 4-bedroom, 4.5-bathroom furnished rental in the Gramercy neighborhood of Manhattan, New York. This 3,000-square-foot (around 280 m2) furnished apartment has a security system and sits near the corner of East 19th Street and 1st Avenue. There is a garden and in the apartment a washing machine and dryer.
Step inside and you will find a living room with hardwood floors, exposed brick walls, and a decorative fireplace. Soaring windows and the decorative banister of an ascending staircase characterize this room. There is a sofa, TV, and additional seating. Ornate chandeliers hang from the ceilings, and there is air conditioning throughout this furnished apartment. The separate kitchen has a refrigerator, freezer, microwave, oven, coffeemaker, toaster and dishwasher. There is counter seating and a dining table where you can enjoy the meals you might cook. There is a separate toilet on this lower floor, and access to a deck with a table and chairs. On the next floor, you will find a second living room that has sofas, a desk and a ceiling fan. The first bedroom has a four-poster, king-size bed and a wall-mounted TV. The bathroom on this floor has an oversize, jetted tub, a walk-in shower, and dual sinks. On the upper floor, you will find three bedrooms and three bathrooms. One bathroom has a tub and showerhead, and the other two have showers. One bedroom has a king-size bed, a TV, and an en-suite bathroom. Another bedroom has a queen-size bed and a TV. The last bedroom includes a single-size bed and an en-suite bathroom. Outside, you will find the garden of this furnished apartment to enjoy greenery in the city. There is a gazebo and a table and chairs.
New York University is 0.9 miles (around 1.5 km) from this apartment. Union Square Park is 0.5 miles (around 800 meters) away. This famous, lively park has a green market with local vendors. You will find movie theaters within a mile (around 1.5 km) of this furnished rental. There are both casual and upscale restaurants less than 0.7 miles (around 1 km) away. You will also find grocery stores within 0.4 miles (around 650 meters) of this apartment.
To catch the subway, head to the corner of 1st Avenue and East 14th Street, which is 0.4miles (around 650 meters) away. From there, you can take the L train. At the Union Square subway station, which is 0.7 miles (around 1 km) away, you can take the N, Q, and R train lines.