

























| start date | end date | sleeps | month | information |
|---|---|---|---|---|
| Sep 01 2026 | open | 3 |
$4,025 |
information:9 months to 1 year rentals. Tenant may extend. 2 months min; Utilities not incl; $150 exit cleaning New York Furnished Rental Deals * |
This is a charming one bedroom apartment in the heart of Chelsea, Manhattan, New York.
This one bedroom apartment is located on the 3rd floor of a 3-story prewar brownstone on a tree-lined block in Chelsea. There is an intercom system and double doors in the front entrance hall of the building. Entrance is by private key only. Laundry facilities are conveniently located one block away.
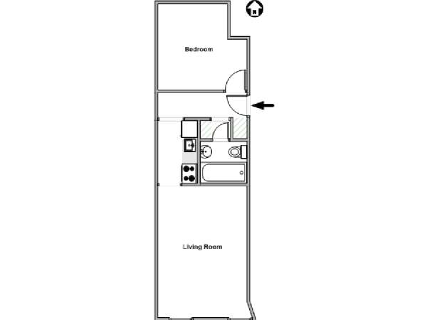
The apartment has hardwood floors throughout the space and many exposed brick walls. The atmosphere is cozy and warm. The bedroom is located on the right of the entrance hallway upon entering the apartment. The bedroom has a large skylight that lets in beautiful natural light. The room is furnished with an amoire and a full sized bed.
Please note that the furniture in the bedroom is arranged differently and there is different artwork since the photos have been taken.
As you continue down the hallway you make a left turn into the kitchen. The kitchen is galley style. There are appliances and cabinetry. The kitchen comes equipped with a microwave, dishwasher, refrigerator, coffeemaker and toaster. All pots pans and utensils are provided for the guest. There is ample counter and storage space for preparing and storing food.
The livingroom has two large windows that face south. There is also a large skylight. The space is sunny and roomy. There is a small dining table with chairs near the windows. There is also a comfortable queen sized sofabed. The apartment comes equipped with a flat screen TV mounted on the wall.
The bathroom is located off of the main hallway near the front entrance of the apartment. The bathroom has a full bathtub with a shower and a cabinet under the sink. There is a large linen closet adjacent to the bathroom.
This 1 bedroom apartment is located on 19th Street and Ninth Avenue in Chelsea, an area on the lower western side of New York City. Movie theaters, great shopping and all conveniences can be found on Eighth Avenue. Slightly further east, both Fifth and Sixth Avenues between 14th to 23rd Street are lively shopping areas with a huge variety of clothing and specialty stores. The apartment is just over one block from the the High Line Elevated Park, a newly converted area that used to be freight railroad line. Beyond the park, you will find the Hudson River the and the famous Chelsea Piers Sports Complex where there are health and fitness facilities (pool, gym, rock climbing, etc.) roller blading, two ice skating rinks, bowling alley, driving range and a wide variety of children's programs.
|
Review by: Richard K., Aug 05 2021 From: United States, Apartment Rental: 2 months |
It's a really nice quiet super light apartment in the middle of Chelsea with awesome access to the river etc. Gloria, the owner was super helpful and accommodating. The only drawback was that the whole building was having its gasworks done so cooking was limited to a portable double stove top. The kitchen is pretty well fitted so I had fun adapting. I was told about this limitation before I moved in so no one hid anything. I would rent it again. |
|
Answer by: Apartment Owner Aug 06 2021 |
Thank you Richard for your kind words. Your stay in our building community was a wholesome addition and we welcome you back whenever you please. Regarding the gas, as it were, ConEdison is in the building installing the new gas meter today. All the best to you and yours, Gloria |
|
Review by: Erik B., Mar 02 2015 From: United States, Apartment Rental: 2 months |
The internet and phones didn't work for two months during my stay but that was all on verizon and not the owner of the building. It is a beautiful apartment and an even nicer location. All of the tenants are very courteous and friendly. I would love to live there full time. |
|
Answer by: Apartment Owner Mar 03 2015 |
Thank you Erik for appreciating our apartment and building community. It was a pleasure having you and Chelsea as our guests. I also appreciate your understanding and being so patient with the Verizon service. Frustrating as it is, I know they are working on it and doing their best. Meanwhile, we have arranged for the sharing of internet service and Verizon is providing a voicelink for telephone service. I am sure the new cable which is being installed will remedy this situation. |
|
Review by: Gail C., Feb 12 2010 From: United States, Apartment Rental: 1 month |
The apartment was as depicted in the New York Habitat description, in excellent condition-very clean, no bugs or other issues, and relatively quiet (other than the street noise which is pretty unavoidable). My son had an excellent stay there. He did not have much interaction with the owners who live in the building, but in his case that worked out fine. Overall, a very good location and pleasant apartment. |
|
Review by: Keith ., Sep 16 2008 From: Belgium, Apartment Rental: 12 months |
We were happy with the apartment [in New York] and the landlord and landlady were very friendly and helpful and responded to all our needs. The New York Habitat office was also good, with friendly and efficient service. |