










































| start date | end date | sleeps | month | information |
|---|---|---|---|---|
| No availability at this time | ||||
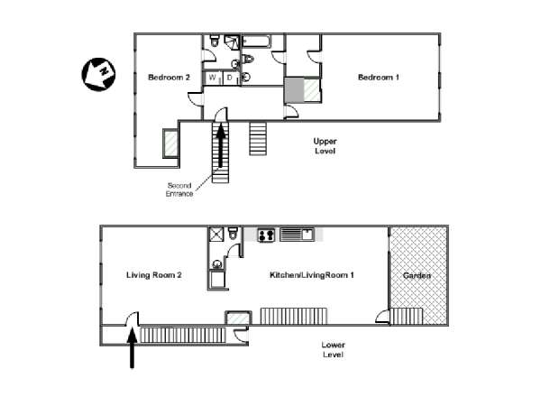
This 1900-ft²(176 m²) two bedroom duplex apartment is located on a quiet street in Manhattan's historic Harlem neighborhood. The rental is on the 1st and 2nd floors (considered ground and 1st floor) of a four-story walk-up townhouse from the year 2000. With both a southwestern and northeastern exposure, the unit has multiple windows, which provide an abundance of natural light and overlook the garden and front street. During your stay, you will have access to this private garden, as well as an in-unit washer & dryer, and WiFi internet and cable.
This apartment can be rented as either a private sublet of the entire unit or as a roommate share situation, where a bedroom and private bathroom is rented and the common areas are shared.
Upon entering the air-conditioned apartment, there is a living area that offers comfortable seating surrounded by unique art and antique accents. Down the hall, which has a double closet, is an open eat-in chef's kitchen, equipped with modern appliances (refrigerator, stove/oven, microwave, and dishwasher.) It has wooden cabinetry and granite counters, as well as a dining table that seats four guests. Next to the kitchen is a second living room that has an entertainment center comprised of a flat-screen TV and DVD player. This lower level also features a guest bathroom with a shower, w/c, and washbasin.
The bedrooms, with their en-suite bathrooms are on the upper level. To the right, is the master bedroom (Bedroom 1), which has a comfortable seating area, queen-size bed, nightstands, dresser, and a large bookcase. To the left is the guest bedroom (Bedroom 2), furnished with a desk and chairs, a double mattress on an antique frame, bedside tables with lamps, and a small bookshelf. Both bedrooms have generous closet space and bathrooms with a vanity sink & cupboard, toilet, and shower—one has a shower stall, while the other has a tub-shower.
Situated on 118th Street and Madison Avenue, this two bedroom apartment is conveniently close to two subway stations. You can access the 2 and 3 trains at 116 Street / Lenox Avenue and the 6 train at 116 Street / Lexington Avenue. Also within close proximity are several of Harlem’s most popular attractions among locals and tourists. Walk two blocks west toward Lenox Avenue, a lively thoroughfare with bolstering entertainment, culinary explorations, and retail shops. If you enjoy the outdoors, walk two blocks north to the Marcus Garvey Park or 7 blocks south to New York City's beautiful Central Park—both offer a peaceful retreat from the fast pace of the Big Apple! Grab a bite at Sylvia’s or Red Rooster (0.7 miles / 1.12 km), which are right across from each other and serve Soul food and classic American dishes, respectively. The campuses of Columbia University in Morningside Heights isjust a mile (1.6 km) away. Other nearby neighborhoods include East (Spanish) Harlem, Upper East Side, and Upper West Side.