












































| start date | end date | sleeps | month | information |
|---|---|---|---|---|
| No availability at this time | ||||
This charming two bedroom apartment for rent is located on the 5th floor (considered 4th by Europeans) of a low-rise elevator building at 7th Avenue & West 114th Street in the Harlem neighborhood of Manhattan, New York. The building has a lovely lobby, typical of prewar buildings, and also includes the convenience of an intercom/buzzer security system and laundry facilities in the basement.
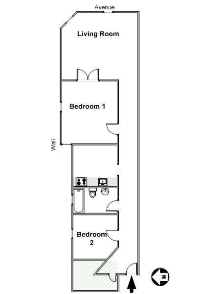
The layout of this two bedroom apartment is perfect for a roommate share situation; one of the rooms for rent is located on the west side of the unit, while the other room is opposite, on the eastern end, increasing the privacy for you. The hardwood floors are nicely accented by the melange of warm wood furniture, and minimalist artwork sets off the high ceilings. There is also an air conditioning unit available to help you survive NYC's infamous summers! The window looks north toward a neighboring building.
Down the hallway, lined with more art, you will find the bathroom that will be shared between you and your roommate. This bathroom has a vibrant lime green accent wall and has a combination bathtub/shower. Further on, you have the kitchen, also shared with the roommate. The kitchen is separate and self-contained, and includes a small dining table next to the window, a gas stove, a double sink and a microwave.
Outside the apartment you will find yourself in the heart of Harlem, a New York City neighborhood rich with history and culture. Just 4 street blocks south is Central Park. The entrance to the Park here is right near the Harlem Meer and Lasker Swimming Pool and Ice Rink. A little more than one avenue block to the west is Morningside Park, perfect for jogs, which then brings you to the renowned Columbia University. The City College of New York is a little further north as well. There are also some iconic Harlem restaurants in the area that are worth checking out. For a taste of authentic soul food head to Sylvia’s, the Queen of Soul Food, at 125th Street and Lenox Avenue.
To access the rest of NYC, you are lucky to have a couple of subway stations in the area. At the 116 Street / 8 Avenue Station (5 blocks) you can access the B, and C trains; and at the 116 Street / Lenox Avenue Station (4 blocks) there is service on the 2, and 3 trains.
|
Review by: Lisa S., Sep 06 2017 From: United States, Apartment Share Rental: 3 months |
Couldn't have had a better experience! Donna is a creative type like me so we got along fabulously! Love this area of Manhattan, it was convenient to everything. |
|
Review by: Samuel M., May 02 2017 From: Spain, Apartment Share Rental: 4 months |
It has been a great experience having the opportunity to share an apartment with Donna, she has been like a 2nd mother but without controlling me! The room was comfortable, clean and quiet. |