





















| start date | end date | sleeps | month | information |
|---|---|---|---|---|
| No availability at this time | ||||
Looking for a room to rent in Uptown Manhattan, NYC? Check out this gorgeous prewar four-bedroom duplex apartment share in Washington Heights of Upper Harlem, Manhattan!
Located on 154th Street & Amsterdam Avenue, the elegant and stately four-bedroom apartment share is on the 1st and 2nd floors of a 4-story prewar townhouse. Featuring gorgeous wood molding, bay windows and hard wood floors, it offers true classic beauty.
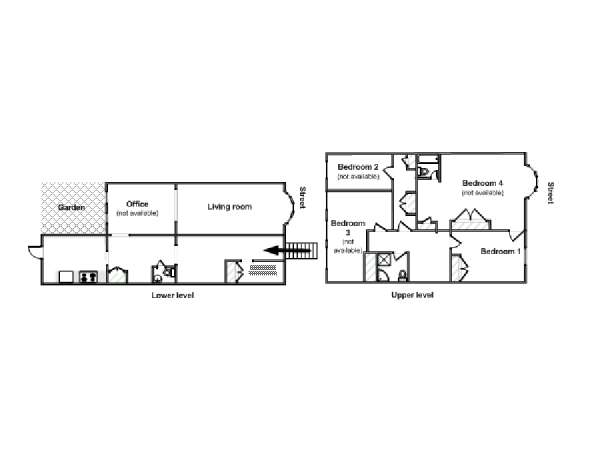
Please Note: This is an apartment share/ room for rent and you will have a private bedroom. All other rooms will be shared with roommates.
*City College students may especially enjoy this accommodation, as it is at a distance of just 0.8mi (1.2km).
The private room for rent is on the 2nd floor (upper level) of the duplex and offers high ceilings and ceiling fan, one long window facing the street and a double bed. Commodious and charming, it includes amenities such as a desk for workspace and an armoire for storage.
With an antique-style, the shared living room presents opulent chandeliers, a piano and a marble fireplace featuring a red oak border. Amenities include antique-style chairs and sofas, and a dining table for six.
The shared kitchen offers all basic cooking appliances and a dishwasher for convenience. There is one full and one half shared bathrooms throughout the duplex.
Harlem, Manhattan is an historic neighborhood of New York offering historic architecture, beloved institutions and famous southern-style soul food restaurants! Many green parks and museums fill the community with culture and aesthetic beauty. Basic living facilities and eateries are within walking distance from the home – a Laundromat is only three blocks away (approx. 0.2mi/ 350m). Listed below are some must-see destinations:
Morris-Jumel Mansion: Check out the oldest house in Manhattan. It served as a headquarters for both sides in the American Revolution! Located at 422 154TH Street. Accessible via foot.
Riverbank State Park: On a sunny day, take a stroll through this park which offers beautiful views of Hudson River Park and the Palisades of New Jersey. It includes a swimming pool, track, soccer fields and more! Enter at Riverside Drive and W 145th Street. Accessible via foot, bus or train.
Public transportation around Manhattan and into other New York City boroughs is easy from this location. Consider walking to the following subway stations:
155 Street / Saint Nicholas Avenue: Serving line C. 417ft/130m.
155 Street / 8 Avenue: Serving lines B, D. 0.3mi/450m.
157 Street / Broadway: Serving line 1. 0.4mi.600m.