












| start date | end date | sleeps | month | information |
|---|---|---|---|---|
| Jul 25 2026 | open | 1 |
$3,975 |
information:Bedroom 3(C): Utilities not included. $179 admin fee - rate subject to change |
| Jul 26 2026 | open | 1 |
$3,650 |
information:Bedroom 1(A): Utilities not included. $179 admin fee - rate subject to change |
| Aug 08 2026 | open | 1 |
$4,450 |
information:Bedroom 4(D): Utilities not included. $179 admin fee - rate subject to change |
| Nov 29 2026 | open | 1 |
$3,700 |
information:Bedroom 2(B): Utilities not included. $179 admin fee - rate subject to change |
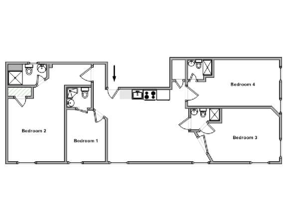
Along 1st Avenue and East 57th Street is a 4-bedroom, 4-bathroom apartment share. Located on the Upper East Side of Manhattan, New York, this apartment is on the third floor (equivalent to the 2nd floor in Europe), and does not have elevator access. It has 894 square-feet (around 83 m2) of space.
This roommate share does not house a living room, but includes a shared kitchen that is fully equipped with a fridge, oven and dishwasher, along with a dining table. There is also a washing machine and dryer. All four bedrooms are equipped with hardwood flooring, air conditioning, and an ensuite bathroom that includes a shower. The first bedroom houses a double bed, while the other three bedrooms have queen-sized beds.
The shared apartment is half mile (around 800 meters) from Lexington Avenue and Park Avenue, which feature a large number of luxury retailers. This is one of New York City’s most prominent shopping destinations. Closer to the apartment, running along 2nd and 3rd Avenue, you will find restaurants and bars within a 0.4 mile (around 650 meters) radius. Central Park, which is Manhattan’s largest and most famous park, is 0.8 miles (around 1.5 km) away.
The 59th Street and Lexington Avenue 4, 5, 6, N, and R subway train station is 0.5 miles (around 800 meters) from the shared apartment. Additionally, the Lexington Avenue and 53rd Street E and M train station is 0.5 miles (around 800 meters) away.