











| start date | end date | sleeps | month | information |
|---|---|---|---|---|
| Mar 30 2026 | open | 1 |
$2,600 |
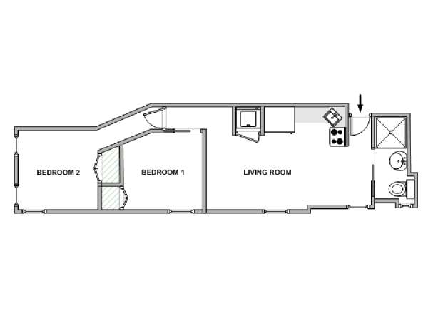
information:Bedroom 1(A): Utilities not included. $125 admin fee - rate subject to change |
| Jun 30 2027 | open | 1 |
$2,325 |
information:Bedroom 2(B): Utilities not included. $125 admin fee - rate subject to change |
Description available soon