







































| start date | end date | sleeps | month | information |
|---|---|---|---|---|
| No availability at this time | ||||
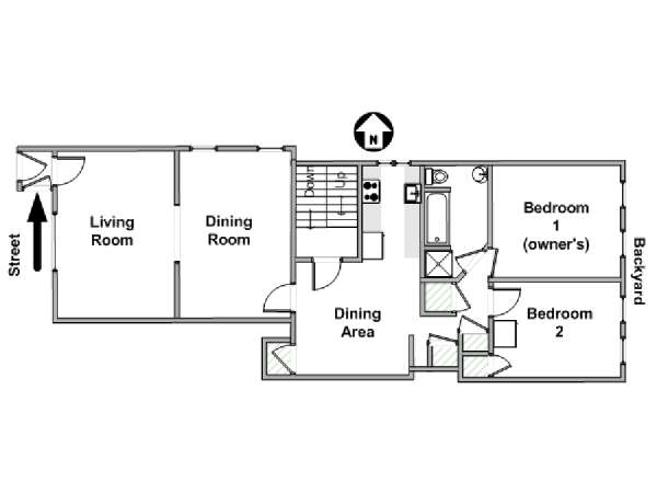
Welcome to this 2-bedroom (one bedroom for rent), 1-bathroom New York apartment share in Brooklyn.
This 1,200-square-foot (around 111 m2) roommate share is located near the corner of Lloyd Street and Church Avenue, and sits on the first floor (equivalent to the ground floor in Europe). The shared living room and adjacent dining room together include three medium-size windows with street and alley exposure. There is a sofa and a TV. The separate kitchen comes with a stainless-steel refrigerator, microwave, oven, freezer, dishwasher, and toaster. The bedroom for rent comes with a queen-size bed, as well as a refrigerator, air-conditioning, and a window to the backyard. The shared bathroom provides a shower and shelving.
A half-mile (around 800 meters) from this apartment, you can visit many of the restaurants in Little Caribbean. King’s Theater is 0.6 miles (around 1 km) from the shared apartment and is an iconic New York concert hall that showcases regular concerts, theater performances, and ballets. And 1.1 miles (around 2 km) from the shared apartment is Parade Ground, a 40-acre athletic park that offers various sports fields located across the street from Prospect Park. Brooklyn College is 1.6 miles (around 2.5 km) from the roommate share.
The Church Avenue and Nostrand Avenue subway station is 0.1 miles (around 150 meters) away, and serves the 2 and 5 lines.