



































| start date | end date | sleeps | day | week | information |
|---|---|---|---|---|---|
| No availability at this time | |||||
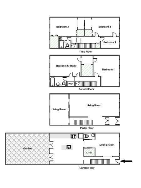
Live like a real Brooklyner in this gorgeous, renovated, four story brownstone in Park Slope. With five decorative fireplaces, high ceilings and an exclusive gorgeous garden, this four-bedroom vacation rental is perfect for anyone interested in experiencing the Brooklyn lifestyle. This home features both northern and southern views as well as laundry facilities within the brownstone.
Situated on Sterling Place and 5th Avenue, this four bedroom brownstone vacation rental includes two large living rooms, a dining room that seats up to six and a high end, fully equipped eat-in kitchen. The kitchen has two French doors that open up to a gorgeous exclusive garden. The living rooms offer multiple seating options and even a grand piano for those who enjoy music as well as a flat screen television with a PlayStation and WII for your entertainment. This four-story apartment is lined with hardwood floors, and the windows in each room allow for sunlight to grace the apartment with a natural glow. There are four bedrooms to provide sleeping accommodation, as well as two queen size air mattresses that are available. The owner of this apartment will provide maps, menus of local restaurants, neighborhood tips and recommendations to ensure your stay in Park Slope is exceptional!
Park Slope is a popular neighborhood in New York's Brooklyn borough for all different types of people. With an eclectic variety of shopping boutiques, restaurants and gorgeous green parks, Park Slope is a great place to reside or vacation! Surrounded by beautiful brownstones, this vacation rental is situated just 1/2 a mile (about 800 meters) from Grand Army Plaza, one of the gateways to Prospect Park, a great place to hang out, relax and enjoy nature. The Brooklyn Museum is also a fun place to spend the day with one of NYC's largest art collections and it is just short of a mile (approx 1.5 km) from this brownstone vacation rental. If you enjoy dining out and love Latin food, go to Bogota Bistro around the corner on 5th Avenue. Fornino is also a great place to dine out for those who enjoy Italian food. There are of course much more eateries within the area that range from style and cuisine. You could always prepare your own meal in the fully equipped kitchen within this vacation rental by picking up your own groceries at the local supermarket at the end of this block on 5th Avenue. On Saturdays, make sure to check out the green market held year round at Grand Army Plaza for fresh produce, and don’t forget to try the playgrounds within a nearby vicinity of this apartment. J.J Byrne Playground and Berkeley Lincoln Playground are both within a reasonable distance from this accommodation.
For those who want to travel to other areas within Brooklyn or New York City, you can access the subway at the nearby stations close to this vacation rental. The three closest stations are located at Bergen Street and Flatbush Avenue (2 & 3 lines), Union Street and 4th Avenue (R line), and 7th Avenue and Sterling Place (B & Q lines). Since each location provides access to different subway lines, public transportation within and around Brooklyn and Manhattan will be simpler and without as many transfers!
|
Review by: Philippe G., Mar 26 2014 From: France, Accommodation Rental: 7 days |
Everything was really great. No complaints. |
|
Answer by: Accommodation Owner Mar 31 2014 |
Thank you, Philippe. We loved having you and your family here! |
|
Review by: Gianluca R., Apr 10 2013 From: Italy, Accommodation Rental: 6 days |
Very kind and helpful hosts, comfortable accommodation, suitable for two families with children (8 occupants), quiet Brooklyn neighborhood, convenient for the subway, 20 min to the center of Manhattan. |