

































| inicio | fin | capacidad | mes | información |
|---|---|---|---|---|
| 01 ene 2026 | abierto | 1 |
$3.400 |
información:Electricity, gas and wifi included. |
¡Lleve sus aventuras a Brooklyn, Nueva York y alquile este apartamento de 2 dormitorios! Ubicado cerca de Fulton Street y Miller Avenue en Cypress Hills, aproveche del transporte público cercano que lo llevará directamente a Manhattan.
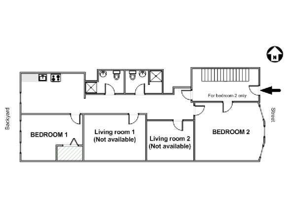
Tenga en cuenta que este apartamento se puede alquilar como un apartamento privado de 2 dormitorios, o como un apartamento compartido donde su dormitorio es su espacio privado y la cocina y el baño se comparten con los compañeros de piso.
En la versión de alquiler compartido, el dormitorio 1 es el dormitorio en alquiler. En el espacio encontrará suelos de colores claros, mucha luz natural, una cama tamaño queen, un escritorio para estudiar y mucho espacio de almacenamiento. En la cocina comedor se ofrecen utensilios básicos de cocina para su comodidad donde puede preparar sus propias comidas. Ambos baños se comparten con los compañeros de piso y cuentan con azulejos y ducha.
En un vecindario que limita con dos distritos, Brooklyn y Queens, Cypress Hills ofrece acceso al transporte público y a una gran variedad de espacios verdes.
A solo unos pasos de distancia, puede acceder a las líneas J y Z desde la estación Van Siclen Avenue / Fulton Street (140 m). Estos trenes lo llevarán hasta Lower Manhattan o puede hacer un transbordo en Broadway Junction para un servicio de tren alternativo.