


















































| inicio | fin | capacidad | mes | información |
|---|---|---|---|---|
| 31 dic 2025 | abierto | 1 |
$1.050 |
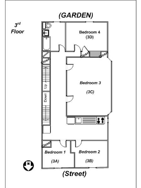
información:Bedroom 4 (3D);WiFi & electric included; $75 cleaning fee |
| 31 may 2026 | abierto | 1 |
$950 |
información:Bedroom 2 (3B): WiFi & electric included; $75 cleaning fee |
¿Busca un dormitorio completamente amueblado en Manhattan ? Bienvenido a Harlem , ¡un tesoro histórico impaciente por su visita! Las habitaciones en alquiler se encuentran en una casa en la calle 130th Street y la avenida Fifth Avenue , un área de gran belleza flanqueada por árboles. Las habitaciones se sitúan en la planta superior de un edificio tipo brownstone de tres plantas (equivalentes a un edificio de dos plantas en Europa) sin ascensor. Todas las habitaciones en alquiler de este apartamento de 5 dormitorios ofrecen gran comodidad y un sitio de descanso y relajación lejano al ajetreo de la ciudad, pese a que se el apartamento a compartir se ubica en un barrio muy conocido de La Gran Manzana. El edificio dispone de un porche de uso compartido por los inquilinos del mismo.
La cocina abierta es la habitación perfecta para la preparación y el disfrute de sus comidas. Viene equipada con una mesa de comedor, una ventana para una mejor iluminación, y su suelo es de baldosas. Entre los electrodomésticos que pone a su disposición se encuentran un horno, un microondas, una cafetera, una tostadora y un frigorífico con congelador. El baño compartido se sitúa al final del pasillo, y consta de un lavabo y una bañera/ducha.
La mayor parte del apartamento la ocupan los 5 dormitorios , que se alquilan a los inquilinos por separado. La gran variedad cultural de los mismos puede ser una gran ventaja a tener en cuenta por el escritor o el filósofo en él alojado, o incluso simplemente para su inquilino que visite por primera vez Nueva York . Por un coste adicional mensual, el edificio pone a su disposición un televisor con conexión por cable para cada habitación.
Dormitorio 1 (3A): Se sitúa en la zona del sureste del piso a compartir , y presenta una ventana de gran tamaño con vistas al jardín. La habitación, con suelos de madera, dispone de una cama de matrimonio, un sistema de aire acondicionado, una cómoda y un escritorio con una silla. También cuenta con un armario para el almacenaje de sus pertenencias.
Dormitorio 2 (3B): Esta habitación es más estrecha, y tiene una pared inclinada que permite que la habitación se oriente hacia el sur. Entre su mobiliario se encuentran una cama individual y un sistema de aire acondicionado. Desde la ventana orientada al oeste, se pueden apreciar los detalles históricos de la calle. Cuenta con un armario para el almacenaje de sus pertenencias y un escritorio con silla.
Dormitorio 3 (3C): Otra habitación con una de las paredes inclinada para posibilitar la orientación al noroeste. Al igual que la anterior, está amueblada con una cama individual y un escritorio para utilizar cuando necesite trabajar.
Dormitorio 4 (3D): Este dormitorio tiene vistas a la calle para disfrutar del precioso paisaje que ofrece Nueva York desde primavera a otoño, y el detalle de la chimenea decorativa la hace una habitación única. El mobiliario de la habitación está formado por una cama individual, un armario y una cómoda.
Dormitorio 5 (3E): Una ventana de gran tamaño ocupa la mayor parte de la pared frontal de este último dormitorio. La habitación dispone de una cama individual, un escritorio con silla, una cómoda y un armario.
Todas las habitaciones en alquiler permiten el paso de la luz natural, pero además disponen de lámparas para cuando se requiera una mayor iluminación.
Ubicado en el corazón del barrio neoyorquino de Harlem , este apartamento compartido de 5 dormitorios se sitúa en un área repleta de servicios y puntos de interés histórico. A continuación se enumera una lista con algunos de los lugares que visitar:
- El Apollo Theater, donde muchos vocalistas han realizado sus actuaciones - a menos de 1,1 km de distancia.
- Universidad de Columbia - Se extiende a lo largo de las orillas del río Hudson, en la zona oeste de Harlem , 2960 Broadway, accesible mediante el servicio del autobús M60.
- Studio Museum in Harlem - en la calle West 125th Street y la avenida Lenox Avenue, un museo de arte moderno a aproximadamente 800 metros de las habitaciones en alquiler .
- Abyssinian Baptist Church - en la avenida Lenox Avenue y la calle 136th Street, al norte del apartamento .
- Hamilton Grange National Memorial, ubicado tras Saint Nicholas Park, en la calle 141st Street.
- Harlem River Park - ubicado al este del apartamento, en la calle 128th Street y la avenida 3rd Avenue, ¡con el distrito metropolitano del Bronx al otro lado del río!
Las estaciones de metro más cercanas se encuentran a tan solo cinco manzanas al sur, en la calle 125th Street (a aproximadamente 650 - 750 metros). En la estación 125 Street y Lenox Avenue podrá las líneas 2 y 3, mientras que en la estación 125th Street y Lexington Avenue operan las líneas 5 y 6 . El autobús de la avenida 5th Avenue, con parada justo en frente del piso compartido , llega al centro y ofrece su servicio a lo largo de todo el día.
Por favor, se debe tener en cuenta que el sistema de calefacción del apartamento se basa en el empleo de una caldera, y puede ocasionar bastante ruido durante la temporada de invierno.
|
Comentario de: Layla P., 13 oct 2022 De: Italia, Piso compartido de: 6 meses |
Lo recomiendo totalmente, me quedaría otra vez aquí. |
|
Comentario de: Clément P., 12 ene 2020 De: Francia, Piso compartido de: 5 meses |
El apartamento está ubicado en el centro de Harlem, a solo 10 minutos a pie de las dos estaciones de metro principales. El dormitorio era cómodo y buen amueblado. Las áreas comunes eran estrechas y no estaban abiertas a las afueras, pero estaban generalmente limpias. Sin embargo, no me gustó que el propietario estuviera en el apartamento cada día. Recomiendo este apartamento compartido por su relación calidad-precio. |
|
Comentario de: Lexis F., 02 jul 2019 De: Estados Unidos, Piso compartido de: 29 días |
Creo que el apartamento estaba muy bien ubicado y por un gran precio. Vi como compañeros de cuarto siempre dejaban el lugar sucio durante un tiempo y, luego, lo limpiaban. Era difícil abrir mi puerta. Estaría bien que dispusiera de cerrojo, pero no fue un mayor problema que no cerrara. La cama me pareció muy cómoda, y disfruté mucho de mi estancia. |
|
Respuesta del: Anfitrión del Piso Compartido 16 jul 2019 |
Ya se ha arreglado el tema de la cerradura de la puerta, y he hablado con los otros compañeros de cuarto sobre sus hábitos de limpieza. |
|
Respuesta del: Servicio al Cliente de Nueva York 16 jul 2019 |
Querido Lexis: |
|
Comentario de: Isabella F., 03 ene 2019 De: Países Bajos, Piso compartido de: 4 meses |
Es un buen espacio de para vivir temporalmente, sin embargo, la cama era incómoda y de tamaño de niño y la ropa de cama no servía y era demasiado fina. No había mucho espacio de almacenaje. La ubicación era genial, en un barrio muy agradable. El propietario venía a limpiar la casa todos los días, lo que era genial porque la casa se comparte con varias personas. |
|
Respuesta del: Anfitrión del Piso Compartido 04 feb 2019 |
Querida Isabella: |
|
Comentario de: David P., 02 abr 2018 De: Estados Unidos, Piso compartido de: 12 meses |
¡Una experiencia fantástica! ¡Apartamento agradable y cómodo! ¡Wifi rápido! |
|
Comentario de: Federico L., 04 oct 2017 De: Italia, Piso compartido de: 3 meses |
Me he sentido muy a gusto. Lo mejor es la ubicación. |
|
Comentario de: Bastian-j. K., 16 ago 2015 De: Alemania, Piso compartido de: 1 mes |
Disfruté por completo de mi estancia en este lugar. Mis compañeros de piso eran muy simpáticos y el casero muy atento. Es un vecindario genial y la calle es muy tranquila. Hay muchos árboles y jardines enfrente del edificio, así que podrá relajarse en su terraza. Desearía haberme quedado más tiempo si hubiera sido posible. |
|
Comentario de: Jean Frederic S., 31 jul 2015 De: Francia, Piso compartido de: 3 meses |
Esta casa es mía desde hace 7 años: está situada en un barrio bonito en la calle 130th, entre Lenox Avenue y 5th Avenue. Estos edificios de piedra rojiza con terrazas y jardín son típicos de Nueva York. |
|
Comentario de: Pia M., 29 mar 2015 De: Estados Unidos, Piso compartido de: 1 mes |
Bien situado, cerca de la estación de metro. Barrio bonito. |
|
Comentario de: Federico L., 23 oct 2014 De: Italia, Piso compartido de: 2 meses |
Muy cerca del metro, del supermercado y de la lavandería. |
|
Respuesta del: Anfitrión del Piso Compartido 27 oct 2014 |
Hola Frederico, gracias por tu feedback. Me alegra saber que disfrutaste de tu estancia. Siento que no estuviera del todo satisfecho con la limpieza, es algo muy importante para mí. Tengo a una persona que viene una vez a la semana y limpia todas las zonas comunes, los baños, las cocinas y las escaleras del vestíbulo. Durante la semana, voy yo un par de horas casí cada día y saco la basura, limpio los fogones y recojo la mesa, lavo los platos que quedan en el fregadero y guardo los platos limpios en los armarios. También echo un ojo a los baños y limpio los restos de agua en el suelo. Gracias por tu feedback positivo. |
|
Comentario de: Alexandre B., 08 oct 2014 De: Bélgica, Piso compartido de: 2 meses |
Lo mejor de este apartamento es que es un piso compartido. |
|
Comentario de: Christian B., 06 sep 2014 De: Italia, Piso compartido de: 2 meses |
La casa se encuentra en una zona residencial tranquila y plácida. Está lejos del ruido de las calles y del tráfico. Hay un pequeño jardín con un porche en la planta baja en el que se puede relajar y beber café. La cocina y el baño son grandes y están en excelentes condiciones. La cocina está muy bien equipada con platos, ollas, sartenes y electrodomésticos. Los dormitorios tienen suelos de madera, como en el resto de la casa. En conjunto, buena puntuación por el estilo también y por el gusto decorativo que recrea la atmósfera de antaño. El anfitrión es muy amable y nos ayudó mucho. Las zonas comunes (cocina y baño) estaban siempre muy limpias. El dormitorio que me asignaron estaba limpio y ordenado. La estación de metro está a unos 5 minutos andando y la línea roja 2-3 le lleva a cualquier parte de Manhattan en unos minutos. Hay muchas tiendas de comestibles y de otros tipos en el barrio. En cuanto a la seguridad, nunca he tenido ningún problema al volver a casa tarde. |
|
Comentario de: Dennis D., 01 ago 2014 De: Estados Unidos, Piso compartido de: 5 meses |
El dueño de la vivienda está muy comprometido con la vivienda, así que él te dirá si estás haciendo algo mal. Esto realmente es algo bueno, ya que mantiene la vivienda organizada. Lo mejor para mí fueron los compañeros de piso extranjeros, un porche para pasar el rato y los agradables vecinos. Recomiendo sin duda hospedarse aquí, ¡si la ubicación te viene bien! |
|
Respuesta del: Anfitrión del Piso Compartido 06 ago 2014 |
Querido Dennis |
|
Comentario de: Franchi A., 21 jul 2014 De: Estados Unidos, Piso compartido de: 6 meses |
No tuve ningún problema con los compañeros de piso, pero, desafortunadamente, sí con el propietario, que está allí las 24 horas, los siete días de la semana. |
|
Respuesta del: Anfitrión del Piso Compartido 15 ago 2014 |
Franchi, estoy muy sorprendido por sus comentarios. Ojalá me hubiera comunicado sus quejas durante su estancia, así podría haber hecho los ajustes o cambios necesarios. Si me hubiera informado sobre el ruido del radiador, lo habría arreglado de inmediato. Ahora que lo sé, lo repararé para el comienzo del próximo invierno. Me desconcierta a qué reloj de alarma que suena los domingos se refiere, si yo no duermo en el apartamento y tampoco tengo un reloj de alarma. En general, pongo el aire acondicionado a principios de julio, hasta finales de agosto o mediados de septiembre, pero no tengo problema en encender uno si me lo piden. De nuevo, ojalá me hubiera dicho que quería que le pusiera en marcha el aire. Entré en su habitación, pero solo cuando me lo pidió, para recoger el alquiler. No estoy en el apartamento las 24 horas, los siete días de la semana, pero voy la mayoría de días unas pocas horas, entre las 11 y las 15 h, para limpiar y sacar la basura. Lamento si tiré algo importante, pero solo descarto las cosas que se dejan por el apartamento durante un tiempo, ya que asumo que ya no se necesitan. En general, si veo algo que se ha quedado por la cocina, que como no sé de quién es no puedo tirarlo, pero que tampoco lo puedo dejar más tiempo ahí porque deja la cocina echa un desorden y es desconsiderado para el resto de los compañeros, entonces lo tiro. Si ha ocurrido esto y hubiera preferido que no lo tirara, por favor, hágamelo saber. Sin embargo, echaré un vistazo a los utensilios de cocina para ver si puedo renovar algo. Gracias. |
|
Comentario de: Dianne R., 01 sep 2013 De: Estados Unidos, Piso compartido de: 26 días |
Disfruté de mi estancia aquí. El propietario estuvo presente para ayudar o responder a preguntas y mantenía las zonas comunes limpias y ordenadas. |
|
Comentario de: Guillaume L., 11 jun 2013 De: Francia, Piso compartido de: 10 meses |
Estoy muy contento con las dos habitaciones en alquiler , Charles es un buen propietario. Me gustaría agradecer al equipo de New York Habitat por haberme ayudado a encontrar este piso compartido . |
|
Comentario de: Carmen Sherry B., 03 jun 2013 De: Estados Unidos, Piso compartido de: 10 meses |
Con un acceso fácil al metro y los autobuses, la ubicación del apartamento es perfecta para andar por la ciudad de Nueva York y por los alrededores. El apartamento satisface todas las necesidades básicas para una estancia corta, cómoda y práctica. |
|
Comentario de: Adyl Z., 05 feb 2013 De: Francia, Piso compartido de: 6 meses |
En general estoy bastante satisfecho. Todo está cerca y se conecta bien con el resto de la ciudad a través del metro. La casa se limpia cada semana. La conexión Wifi no es muy fiable, los muebles y servicios son un poco antiguos. |
|
Respuesta del: Anfitrión del Piso Compartido 07 mar 2013 |
¡¡Gracias por dejar tu comentario, Adyl! Desde que te fuiste, en agosto de 2012, hemos actualizado la conexión a Internet que teníamos y puesto una conexión extra para reducir el número de ordenadores que se conectan al sistema a la vez; para poder ofrecer un servicio de conexión a Internet más fiable. Parece que funciona. |
|
Comentario de: Naomi T., 01 ene 2013 De: Reino Unido, Piso compartido de: 5 meses |
El piso compartido era genial. Una habitación grande a buen precio comparada con algunas habitaciones que amigos míos habían alquilado en la zona. Limpiaban el apartamento regularmente y el casero fue muy amable resolviendo cualquier duda que tuviera. Un pequeño problema era que el wifi no era muy bueno en mi habitación. Hablando con mis compañeros de piso, parece ser que era porque estaba en la habitación más lejana al router. |
|
Respuesta del: Anfitrión del Piso Compartido 17 ene 2013 |
Gracias por tus amables comentarios, Naomi. Siento que la conexión a internet no fuera buena en tu habitación. Ahora que lo sé, intentaré remediar la situación. Me alegra que tuvieras una estancia agradable a pesar del problema de internet. |
|
Comentario de: Tianjanahary R., 07 nov 2012 De: Francia, Piso compartido de: 2 meses |
El sitio en sí estaba muy bien. Era un bonito apartamento para compartir, con compañeros provenientes de todo el mundo, muy cosmopolita. |
|
Respuesta del: Anfitrión del Piso Compartido 12 nov 2012 |
Lamento oír que tuviste problemas con el acceso al baño, Tianjanhary. De haber averiguado esto antes, probablemente podría haber hecho algo para corregir el problema. Tiene razón en cuanto a la limpieza y, por este motivo, se le pide a cada uno que limpien después de ellos mismos. He dejado notas para recordarles esto. |
|
Comentario de: Elodie P., 01 oct 2012 De: Francia, Piso compartido de: 3 meses |
Este piso compartido ha sido cómodo en general. Sin embargo, el propietario no llama a la puerta antes de entrar. Por lo que cuentan otros compañeros de habitación, no es nada nuevo en cuanto a este propietario. |
|
Respuesta del: Anfitrión del Piso Compartido 03 oct 2012 |
Los servicios que suministro incluyen la limpieza de las áreas comunes de cada piso compartido . Tengo a una persona que viene a limpiar una vez a la semana y a realizar algunas tareas de mantenimiento. Los inquilinos sólo tienen que limpiar en su propia habitación. |
|
Comentario de: Mario M., 07 oct 2011 De: Suiza, Piso compartido de: 3 meses |
Me alojé tres meses aquí y lo pasé bien. El dormitorio era tranquilo y lo pasé bien con el resto de mis compañeros de la casa. La calle es probablemente la mejor de Harlem, si no lo es de Nueva York. |
|
Comentario de: Eva Maria & S., 21 ene 2011 De: Austria, Piso compartido de: 5 meses |
Aunque el piso para compartir queda en Harlem, me sentí muy segura. Quedaba cerca del metro, así que no me llevaba mucho tiempo llegar al centro de Nueva York. El piso para compartir estaba limpio y viví con diferentes estudiantes internacionales. ¡Disfruté mucho de mi estadía allí! |