





























| inicio | fin | capacidad | mes | información |
|---|---|---|---|---|
| No está disponible en este momento | ||||
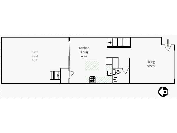
Explore el vecindario de East Harlem, Manhattan, con esta habitación de alquiler ¡en un apartamento de 3 dormitorios! Este piso compartido completamente amueblado está formado por la planta baja y la 1ª planta de un dúplex en un edificio de tres pisos, ubicado entre East 119th Street y Madison Avenue, con sistema de seguridad y jardín trasero.
Este apartamento de 3 dormitorios de Nueva York está amueblado con una decoración ecléctica y dispone de suelos de madera en el salón. La habitación de alquiler está en la planta inferior e incluye cama de matrimonio, armario y televisor con servicio de televisión por cable. Además, en esta planta podrá encontrar un baño completo con retrete, bañera con ducha y lavabo. En la planta superior está el salón, amueblado con un sofá, una mesa de comedor para dos y una mesa de café, además de un aseo con lavabo e inodoro. Por último, este nivel cuenta con una cocina comedor de concepto abierto, equipada con horno, frigorífico, microondas, cafetera, tostadora y lavavajillas.
Harlem East está ubicado en Upper Manhattan y ofrece una gran variedad de tiendas, restaurantes y parques para disfrutar.
·¡Hay muchas opciones para ir de compras en este vecindario! Por ejemplo, East River Plaza (a 1,1 km), que es un centro comercial en el que encontrará tiendas como Target, Costco y Marshalls.
·Disfrute de los numerosos restaurantes de este barrio, entre los que se incluyen New Ivoire (a 160 m), Jay’s Pizza (a 160 m) y Gran Piatto d’Oro (a 322 m).
·Tómese un descanso de la agitada vida neoyorquina y pase tiempo en los diversos parques de este vecindario, como Marcus Garvey Park (a 160 m).
En cuanto al transporte público, puede coger los trenes expresos 2/3 en la parada de 116 Street/Lenox Avenue (a 322 m), o las líneas 4/5/6 en la parada de 125 Street/ Lexington Avenue (a 643 m).
|
Comentario de: François L., 13 jun 2019 De: Francia, Piso compartido de: 2 meses |
Había llegado recientemente a Nueva York por trabajo y estuve lejos de mi familia durante 2 meses, pero Collin, el propietario, me recibió perfectamente. |
|
Comentario de: Bryan B., 13 may 2018 De: Francia, Piso compartido de: 2 meses |
El apartamento es muy agradable. Colin es muy hospitalario. |
|
Comentario de: Claude M., 15 oct 2015 De: Estados Unidos, Piso compartido de: 4 meses |
He disfrutado mucho de mi estancia en el piso de Collin, quien fue muy hospitalario y eso me hizo estar muy a gusto. Solía preparar platos muy buenos que luego compartía conmigo. En general, recomiendo mucho este piso compartido. |