



























| inicio | fin | capacidad | mes | información |
|---|---|---|---|---|
| No está disponible en este momento | ||||
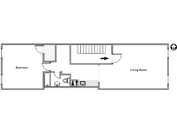
Viva en el corazón de Harlem en este apartamento amueblado de un dormitorio y un baño. Este pintoresco apartamento está situado en la 3ª planta (la 2ª planta en Europa) de un encantador edificio sin ascensor cerca de Manhattan Avenue y West 122nd Street.
Este apartamento de un dormitorio es cálido y acogedor, con suelos de madera por todo el alojamiento y una chimenea decorativa con ladrillo visto en el salón. También en la sala de estar, un sofá de felpa se sienta debajo de una linterna marroquí por las ventanas que dan a la calle arbolada. La luz natural ilumina el espacio mientras se relaja viendo la televisión de pantalla plana. El sofá se abre a un sofá cama tamaño queen para los invitados. La hermosa chimenea decorativa añade un ambiente acogedor. Una mesa de comedor se encuentra junto al arco de entrada a la cocina. La cocina está diseñada con coloridos armarios rojos, un salpicadero de madera y electrodomésticos de acero inoxidable. El dormitorio es como un oasis en la ciudad, con vegetación y ventanas que dan al jardín trasero. Una cama tamaño queen se sienta cerca de las ventanas con otra chimenea decorativa en esta habitación. Hay un sofá para relajarse, un escritorio de madera y una silla para leer o estudiar. Un vestidor ofrece espacio para guardar sus pertenencias. El baño cuenta con una combinación de bañera/ducha y hay una lavadora/secadora en el apartamento.
Este vibrante barrio está situado en Harlem, Nueva York. En la calle principal, 125th Street, se puede encontrar una gran variedad de tiendas y el famoso Teatro Apollo. En Lenox Avenue se encuentran algunos de los restaurantes más famosos de Harlem, como Sylvia's Restaurant y Red Rooster, donde podrá degustar comida casera y soul food. Para algo fuera de lo común, está Delhi Masala, que tiene cocina india. Corner Social es el lugar ideal para disfrutar de la hora feliz con los amigos.
El metro más cercano está en 125th Street / Saint Nicholas Avenue: Líneas A/B/C/D.
|
Comentario de: Un Inquilino, 05 ene 2024 De: Japón, Alquiler de apartamento de: 1 mes |
Este apartamento es muy acogedor y es maravilloso. Cuando llegué, me sorprendió lo bien amueblado y decorado que está. En cuanto a la limpieza, estaba impecable y la lavadora y la secadora estaban bien ubicadas en una habitación. Los utensilios de la cocina también estaban bien organizados. Fue una estancia estupenda en una área tranquila e histórica de Harlem. |