














| inicio | fin | capacidad | mes | información |
|---|---|---|---|---|
| 29 abr 2026 | abierto | 6 |
$10.350 |
información:+ Taxes-Check prices with agents-No bookings more than 30 days ahead |
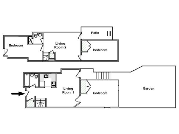
Tiene disponible un apartamento de tres dormitorios en el Upper East Side de Manhattan, Nueva York. Este apartamento familiar está completamente amueblado y se encuentra en 2nd Avenue y East 74th Street.
Este apartamento puede ser compartido por tres amigos o por una familia gracias a sus tres dormitorios, cada uno con su propia cama de tamaño queen y ventana. Relájese en el sofá mientras disfruta de la televisión de pantalla plana con cable, o siéntese en una de las sillas de cuero de la sala de estar mientras lee un libro. La cocina está completamente equipada con un horno, fogones, refrigerador, congelador, tostadora y microondas. Hay una mesa de comedor de madera oscura con cinco sillas entre la cocina y el comedor, y podrá limpiar con facilidad tras una gran comida familiar gracias al lavaplatos de la cocina. Todos los dormitorios cuentan con suelo de madera, ventanas y una cama de tamaño queen. Ambos baños cuentan con una bañera con ducha para que todos puedan relajarse con un baño de burbujas tras un largo día.
Upper East Side es un vecindario de Nueva York ideal para vivir, y está repleto de restaurantes renovados y atracciones turísticas emocionantes. Respire aire fresco y disfrute de las zonas verdes de Central Park (1 km), el parque más grande de Manhattan y el lugar idóneo para hacer un pícnic en verano o esquiar en invierno. Visite el Museo Metropolitano de Arte (1,4 km) y camine por sus pasillos mientras admira algunas de las mejores obras de arte del mundo. Cene en THEP Thai (140 m) o Sushi Ishikawa (350 m) si busca cocina asiática o hágase con un plato de pasta y escuche música de piano en directo en Campagnola (300 m). Compre objetos esenciales en Target (500 m) e ingredientes para cocinar en East Side Grocery (75 m). Comience sus mañanas con una taza de café en Starbucks (170 m) y termine sus noches con una copa de vino en Vero Wine Bar (300 m). Lave la ropa en 77 Laundromat (550 m) o Liz 74 Laundry & Dry Cleaning (60 m).
Tiene disponible una estación de metro público en 72 Street / Broadway.