






































| inicio | fin | capacidad | mes | información |
|---|---|---|---|---|
| No está disponible en este momento | ||||
Este apartamento de un dormitorio está situado en el SoHo, uno de los barrios más populares de Nueva York. El loft está ubicado en Prince Street & Greene Street, en la segunda planta de un edificio de siete pisos en una parte histórica del lugar. La puerta delantera del edificio se mantiene cerrada y se necesita una llave personal para entrar o también se puede usar el sistema de interfono.
Puede hospedarse en este apartamento de un dormitorio de distintas maneras, como un bed and breakfast donde se hospedan los inquilinos en habitaciones individuales mientras los dueños siguen ocupando el apartamento (ellos duermen en el sofá-cama de la zona de la sala de estar), o como un apartamento para estancias de 30 días o más, donde los inquilinos disponen del piso completo.
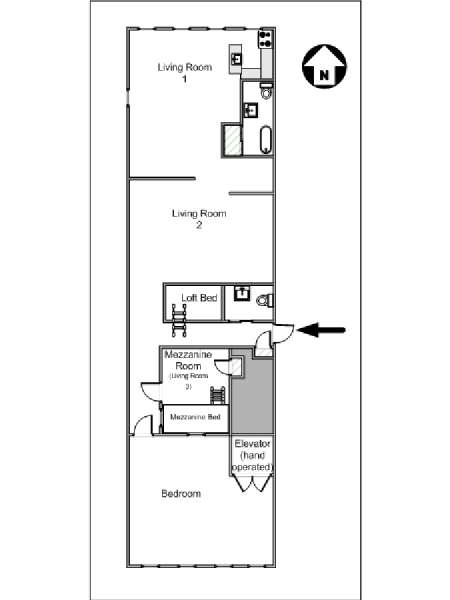
Hay dos salas de estar, una en la parte norte del apartamento que está abierta a la cocina abierta que está junto a la zona de comedor. La segunda se encuentra en el centro del apartamento y tiene un futón para dos personas y también un colchón individual en la zona de dormitorio tipo loft que da a esta (accesible a través de una escalera de mano desde el pasillo principal). Tenga en cuenta que esta zona central tiene muy poca intimidad. En cuanto a los baños hay dos, uno es un baño completo con bañera/ducha y el otro solo tiene WC.
Las dos habitaciones disponibles para hospedarse están en la zona sur del apartamento, a través de un pasillo, lejos de las salas de estar y de la zona de cocina y de comedor (véase la distribución de planta). Ambas están a su disposición si lo necesita y si los huéspedes no desean compartir cama (por un precio añadido por noche), pero no se pueden hospedar al mismo tiempo grupos de personas individuales.
La primera habitación, el primer dormitorio, está amueblado como un pequeño estudio e incluye una cama tamaño queen y un colchón para dos personas (sin la armadura) para dormir, sillas y un escritorio. Hay cuatro ventanas orientadas hacia el sur que permiten la entrada de luz natural y un ventilador de techo o aire acondicionado para refrescar la zona. Debe saber que debido a esas grandes ventanas, la habitación se ilumina muy temprano por la mañana. A tener en cuenta: no hay wifi en el apartamento – solo se dispone de Internet de banda ancha desde esta habitación.
La segunda habitación disponible es el cuarto de la cama alta (tercera sala de estar en las fotografías y en la distribución de planta). Incluye un colchón tamaño queen en una cama alta elevada a nivel de tarima accesible a través de 4 escalones. También dispone de escritorio con estanterías. Hay ventanas interiores que dan al primer dormitorio estudio pero pueden taparse con persianas.
El Soho, Greenwich Village, Tribeca, Little Italy y Chinatown se encuentran todos a poca distancia. También hay cerca restaurants, cines, cafeterías y muchos otros tipos de entretenimiento. Este barrio es el centro mismo de la actividad de Nueva York. La tienda Apple está muy cerca. Los restaurantes del Soho son algunos de los más excelentes de la ciudad.
Para moverse en transporte público, tome los metros N y R en la estación de metro Prince Street / Broadway. Le conectarán hacia el sur hasta llegar a la parte más baja de Manhattan ¡y hacia el norte hasta llegar a Midtown y Queens!
Aviso: ¡¡¡¡HAY 2 GATOS VIVIENDO EN EL APARTAMENTO!!!! (el dueño se hará responsable de alimentarlos y de cuidarlos).
A tener en cuenta: debido a su ajetreada ubicación, el apartamento puede ser ruidoso en ocasiones.
Tenga en cuenta que durante el invierno, el dormitorio principal puede volverse más frío que el resto del apartamento.
|
Comentario de: Arlene C., 27 mar 2008 De: Estados Unidos, Alquiler de apartamento de: 1 mes |
[...] El [alquiler del apartamento en Nueva York] el verano pasado fue espectacular. Desde entonces, he recomendado [el alquiler] a varias personas. Era hermoso, y aprecio su ayuda. |
|
Respuesta del: Propietario del Apartmento 27 mar 2008 |
Arlene y Keny C. fueron excelentes arrendatarios. |