

























| start date | end date | sleeps | day | week | information |
|---|---|---|---|---|---|
| Mar 01 2026 | open | 5 |
€1,485 |
information: |
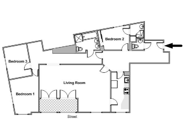
Welcome to this three-bedroom, two-and-a-half-bathroom furnished apartment in Provence, France.
Located near the crossing of Avenue Malherbe and Boulevard du Roi René in Aix-en-Provence, this accommodation sits on the top floor of a 4-story building. The building includes an elevator and a security system. The apartment features a washing machine, a dryer, and a balcony.
The living room offers air conditioning, a sofa, a TV, a dining area, a desk/workspace, and access to the balcony. The separate kitchen is equipped with an oven, a fridge, a freezer, a microwave, a toaster, and coffee machine, a dishwasher, an eating area, and granite-patterned countertops and backsplash. All three bedrooms provide a double-sized bed, with two of the bedrooms including a desk/workspace. Two of the bathrooms offer a walk-in shower and one also provides a separate bathtub.
Fontaine de la Rotonde is the beautiful centerpiece in a square which is home to eateries and shopping; it is located 500 meters (around 0.3 miles) from the apartment. Pavillon Vendôme, 1.1 km (around 0.7 miles) from the furnished rental, offers an art museum and gardens. Paroisse Cathédrale Saint Sauveur Aix-en-Provence is historically and architecturally significant and is 1 km (around 0.6 miles) from the apartment. Cafes, bars, and restaurants are within 500 meters (around 0.3 miles) of the apartment.
The Marseille Provence Airport is 30 km (around 20 miles) from the apartment. Nearer, the Aix-en-Provence train station is 200 meters (around 0.1 miles) away.