






















| inicio | fin | capacidad | mes | información |
|---|---|---|---|---|
| ahora | 15 may 2026 | 4 |
$4.600 |
información:Gas & Elec not included - Heat, water, garbage & Internet included. $300 final cleaning fee Ofertas de apartamentos amueblados en Nueva York * |
| 02 ago 2026 | abierto | 4 |
$4.600 |
información:Gas & Elec not included - Heat, water, garbage & Internet included. $300 final cleaning fee Ofertas de apartamentos amueblados en Nueva York * |
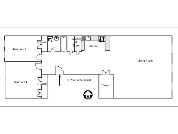
Este apartamento amueblado de dos dormitorios está ubicado en el cuarto piso de un Brownstone sin elevador en el corazón de Harlem, Ciudad de Nueva York. El edificio está equipado con un sistema de seguridad.
Este apartamento amueblado tiene lavadora y secadora y ofrece una amplia sala con pisos de madera, ladrillos expuestos y una mesada de granito abierta. El apartamento también tiene WIFI Internet.
La sala tiene 2 camas dobles, que acomodan a 4 personas.
Cada habitación ofrece exposición este con vistas del jardín, mientras que las ventanas de la sala ofrecen vistas hacia el oeste de la calle y los edificios.
La ubicación de este apartamento es muy conveniente porque está muy cerca la estación de metro en 125th Street, donde hay muchas líneas de metro que llegan a todo Manhattan.
Harlem es un barrio histórico de la ciudad de Nueva York, con muchas atracciones, como el Apollo Theater, que no está lejos del apartamento. También, puede experimentar la sabrosa comida del alma en los muchos restaurantes de la zona, así como también canciones de Gospel en las misas de los domingos en cualquier Iglesia local. Hay una zona de tiendas en 125th Street, repleta de tiendas, bares, restaurantes y teatros. También puede visitar el famoso Harlem Market donde puede encontrar muchas cosas y regalos lindos e interesantes.
|
Comentario de: Mika V., 08 abr 2010 De: Finlandia, Alquiler de apartamento de: 7 días |
Quedamos bastante satisfechos con el apartamento que alquilamos a través de New York Habitat. Tuvimos algunos problemillas al principio, pero el dueño se ocupó de ellos rápidamente. El principal problema en realidad fue que la conexión WLAN del apartamento no funcionaba, pero tampoco nos molestó tanto. |
|
Respuesta del: Servicio al Cliente de Nueva York 12 abr 2010 |
Tras recibir esta reseña, contactamos al dueño de este apartamento de vacaciones, quien nos confirmó que Internet ya funciona. |